Preferiti

Sponsorizza

Stampa

Negozio in affitto a Siena

  • 1.800€
  • 2 locali
  • 213 mq
  • Affittasi

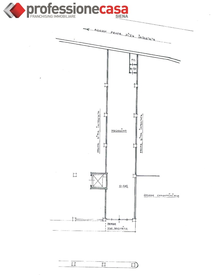
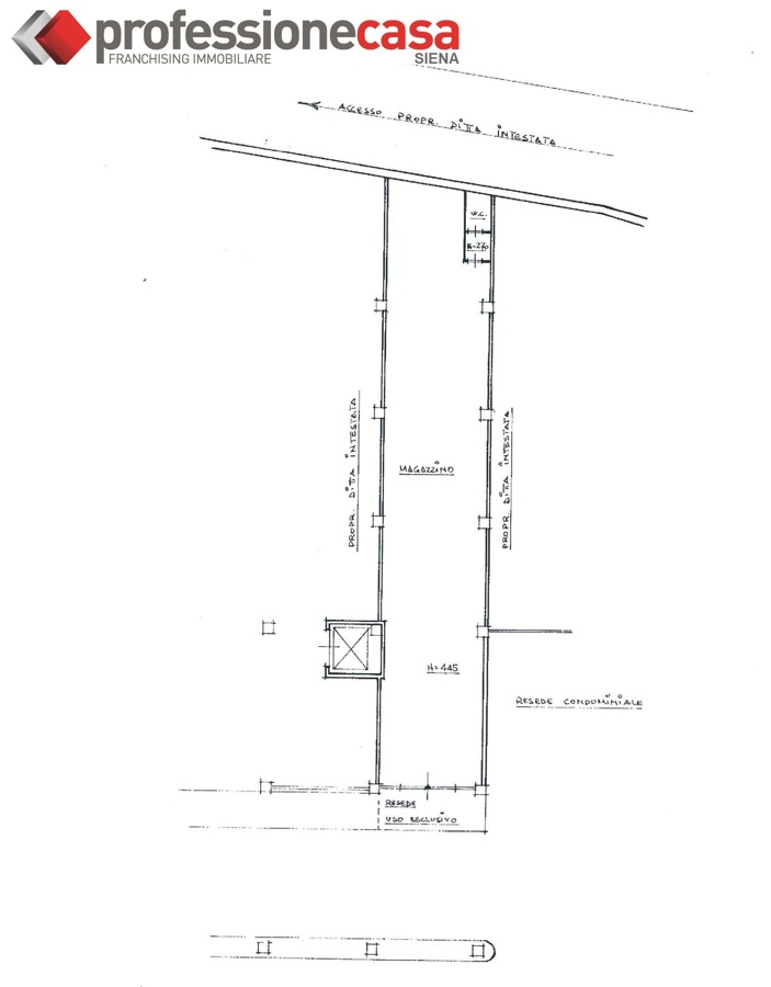
Agenzia ProfessioneCasa Siena propone in locazione fondo commerciale di circa 213 mq. situato al piano terra in zona viale Toselli in Siena.
Il fondo con doppio ingresso da porta scorrevole carrabile per auto e grandi mezzi e porta laterale pedonale.
Presente soppalco adibito ad ufficio e un servizio igienico al piano terra.
Ottima ubicazione destinazione catastale C/1. Altezza interna dove non e' presente soppalco 4,45 metri.
Deposito cauzionale richiesto pari a sei mensilit o in alternativa fideiussione bancaria.
Agenzia Immobiliare una provvigione pari ad una mensilit + iva del 22%. Contatta l'inserzionista

G&H Immobiliare SrlsG&H Immobiliare Srls
Via Baldassarre Peruzzi 79/81
, Siena (Siena)
Visualizza Telefono

INFORMAZIONI SULL'IMMOBILE

  • Riferimento: cod.fondovialetosell
  • Tipologia: Negozio in Affitto
  • Locali: 2 Locali ( 1 camera e un bagno)
  • Piano: Terra
  • Prezzo: 1.800 €
  • Prezzo al mq: 8 €
  • Spazio Auto: No
  • Modificato il: 03/12/2025
  • Scheda: SC8700627

Stabile

  • Piano: Terra
I.P.E.
179Kwh/m2
G

Mappa e indirizzo

53100 Siena (Siena)
mappa mostra l'annuncio su mappa

Galleria Fotografica

Contatta l'inserzionista

G&H Immobiliare Srls

G&H Immobiliare Srls di Siena propone in affitto questo immobile, contattali subito!

Annunci simili

Annunci immobiliari a Siena (SI)

Copyright Š 2026 PCase.it. All rights reserved. Sede operativa MILANO. P.IVA 08508420968 - Condizioni d'uso e privacy