Preferiti

Sponsorizza

Stampa

Negozio in affitto a Palermo

  • 2.000€
  • 3 locali
  • 150 mq
  • Affittasi

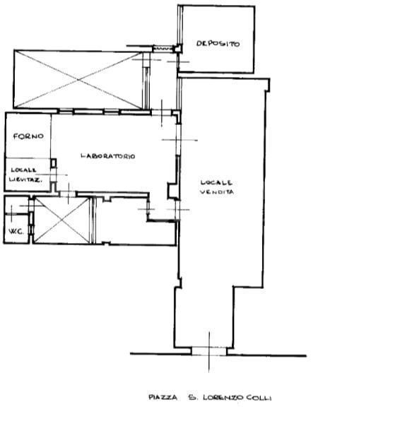
Proponiamo in affitto un luminoso negozio ad uso commerciale in zona strategica con una superficie di 150 mq suddivisi in 3 locali e 1 bagno.
Ideale per avviare attivit come bar, pasticceria, panificio o gastronomia, il locale si presenta in ottime condizioni e offre una vetrina su strada per massima visibilit.
Dotato di laboratorio, deposito, wc e spazio esterno posteriore, il negozio pronto per accogliere nuove iniziative imprenditoriali.
Non lasciarti sfuggire questa opportunit unica per dare vita al tuo business in una delle zone pi vivaci e frequentate di Palermo.
Contattaci per organizzare una visita e scoprire tutte le potenzialit di questo spazio commerciale. Contatta l'inserzionista

S.M.I. Immobiliare sas di Scafidi MauroS.M.I. Immobiliare sas di Scafidi Mauro
Via Dei Nebrodi 26
, Palermo (Palermo)
Visualizza Telefono

INFORMAZIONI SULL'IMMOBILE

  • Riferimento: Rif.17/26ACG
  • Tipologia: Negozio in Affitto
  • Locali: 3 Locali (2 camere e un bagno)
  • Piano: Terra
  • Stato: Buono
  • Prezzo: 2.000 €
  • Prezzo al mq: 13 €
  • Spazio Auto: No
  • Modificato il: 24/04/2026
  • Scheda: SC9616368

Stabile

  • Piano: Terra
  • Portineria: No
  • Classe Energetica: n.d.

Mappa e indirizzo

90131 Palermo (Palermo)
Cardillo, Sferracavallo, Tommaso Natale
mappa mostra l'annuncio su mappa

Galleria Fotografica

Contatta l'inserzionista

S.M.I. Immobiliare sas di Scafidi Mauro

S.M.I. Immobiliare sas di Scafidi Mauro di Palermo propone in affitto questo immobile, contattali subito!

Annunci immobiliari a Palermo (PA)

Copyright Š 2026 PCase.it. All rights reserved. Sede operativa MILANO. P.IVA 08508420968 - Condizioni d'uso e privacy