Preferiti

Sponsorizza

Stampa

Locale commerciale in vendita a Castel San Giovanni in via nazario sauro 5a

  • 145.000€
  • 3 locali
  • 93 mq
  • Vendesi

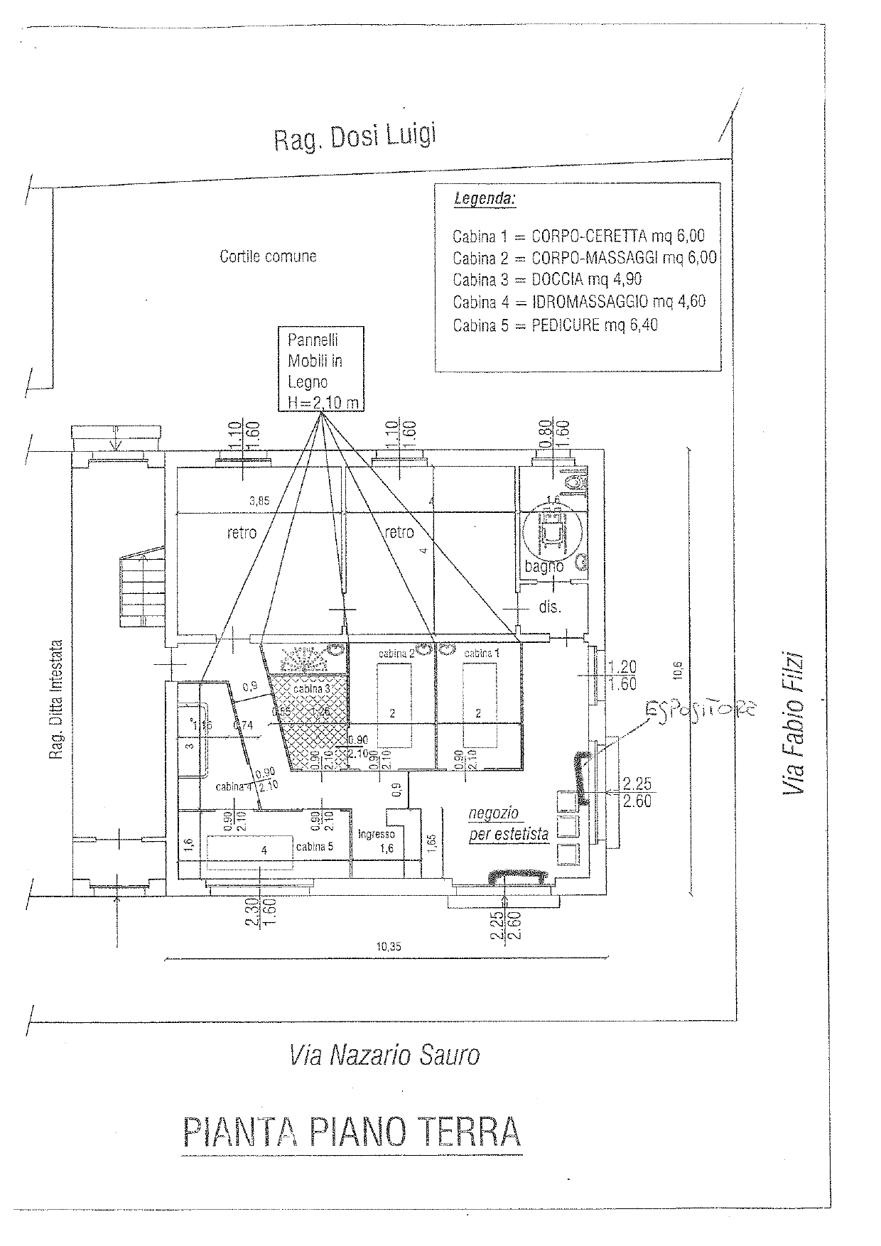
In zona semi-centrale di passaggio proponiamo in vendita negozio di mq. 93 posto al piano terra.
Il negozio è in ottime condizioni.
Attualmente l'immobile è locato.
Ottimo come investimento. Contatta l'inserzionista

Agenzia Immobiliare IncasaAgenzia Immobiliare Incasa
Corso Matteotti 84b
29015, Castel San Giovanni (Piacenza)
Visualizza Telefono

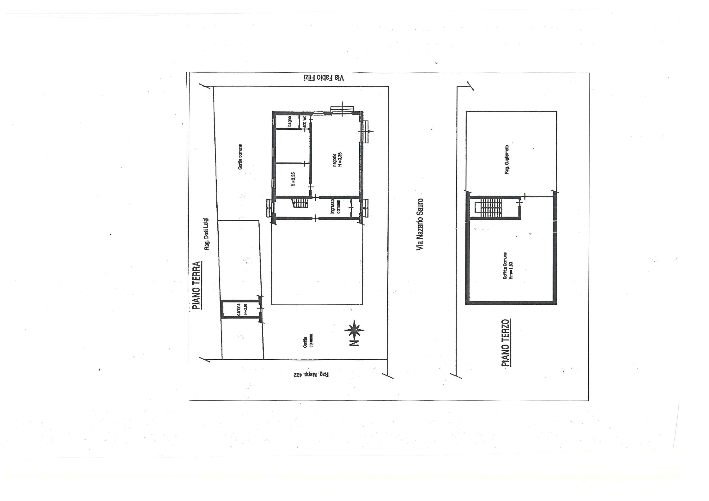
INFORMAZIONI SULL'IMMOBILE

  • Riferimento: CV003
  • Tipologia: Locale commerciale in Vendita
  • Locali: 3 Locali (2 camere)
  • Piano: Terra
  • Stato: Buono
  • Prezzo: 145.000 €
  • Prezzo al mq: 1.559 €
  • Modificato il: 16/01/2024
  • Scheda: SC9422880

Stabile

  • Piano: Terra su 3 totali
D

Galleria Fotografica

Contatta l'inserzionista

Agenzia Immobiliare Incasa

Agenzia Immobiliare Incasa di Castel San Giovanni propone in vendita questo immobile, contattali subito!

Annunci immobiliari a Castel San Giovanni (PC)

Copyright Š 2026 PCase.it. All rights reserved. Sede operativa MILANO. P.IVA 08508420968 - Condizioni d'uso e privacy