Preferiti

Sponsorizza

Stampa

Locale commerciale in vendita a Alessandria in via camillo cavour 19

  • 100.042€
  • 3 locali
  • 147 mq
  • Vendesi

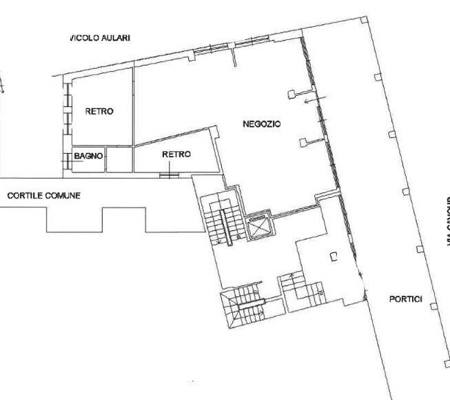
Piena proprietà di locale ad uso negozio con vetrine al piano terra e due posti auto contigui nel cortile.
Il bene si compone di locale ad uso negozio oltre a due vani ad uso retro e bagno con antibagno.
Superficie totale mq 126,00. Occupato da terzi in forza di titolo opponibile.
I posti auto, della superficie di 13 e 14 mq, risultano occupati da terzi in forza di titolo non opponibile.
- Il Prezzo visualizzato è la Base d'Asta in quanto limmobile è oggetto di esecuzione immobiliare venduto tramite Asta Giudiziaria.
- L'immobile aggiudicato, viene venduto libero e sgombro da persone cose ed ipoteche nello stato di fatto e di diritto in cui si trova.
- Non rappresentiamo il Tribunale, ma lavoriamo nell'esclusivo interesse del potenziale acquirente per garantire un acquisto sicuro.
- I consulenti di ASTE ITALIA ti assisteranno in tutte le attività dell'iter giudiziario dalla visita dell'immobile fino alla consegna chiavi.
- Contatta il nostro Servizio Clienti , i nostri operatori sono a disposizione per chiarire i molteplici dubbi per partecipare alle ASTE. Contatta l'inserzionista

DOMY ONLINE S.R.L.DOMY ONLINE S.R.L.
Via San Lorenzo 5 Int. 41
16123, Genova (Genova)
Visualizza Telefono

INFORMAZIONI SULL'IMMOBILE

  • Riferimento: AL3/25L3-2605-26-150
  • Tipologia: Locale commerciale in Vendita
  • Locali: 3 Locali (2 camere e un bagno)
  • Piano: Terra
  • Stato: Buono
  • Prezzo: 100.042 €
  • Prezzo al mq: 681 €
  • Modificato il: 18/02/2026
  • Scheda: SC9603590

Stabile

  • Piano: Terra
G

Mappa e indirizzo

Locale commerciale sito in via camillo cavour 19
15100 Alessandria (Alessandria)
mappa mostra l'annuncio su mappa

Galleria Fotografica

Contatta l'inserzionista

DOMY ONLINE S.R.L.

DOMY ONLINE S.R.L. di Genova propone in vendita questo immobile, contattali subito!

Annunci simili

Annunci immobiliari a Alessandria (AL)

Copyright Š 2026 PCase.it. All rights reserved. Sede operativa MILANO. P.IVA 08508420968 - Condizioni d'uso e privacy