Preferiti

Sponsorizza

Stampa

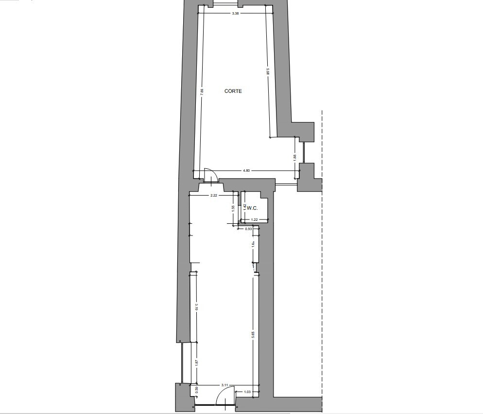
Locale commerciale in vendita a Lavagna in via brigate partigiane 7

  • 73.500€
  • 1 locale
  • 44 mq
  • Vendesi

Fondo commerciale in Cavi di Lavagna (GE). - Il Prezzo visualizzato è la Base d'Asta in quanto limmobile è oggetto di esecuzione immobiliare venduto tramite Asta Giudiziaria.
- L'immobile aggiudicato, viene venduto libero e sgombro da persone cose ed ipoteche nello stato di fatto e di diritto in cui si trova.
- Non rappresentiamo il Tribunale, ma lavoriamo nell'esclusivo interesse del potenziale acquirente per garantire un acquisto sicuro.
- I consulenti di ASTE ITALIA ti assisteranno in tutte le attività dell'iter giudiziario dalla visita dell'immobile fino alla consegna chiavi.
- Contatta il nostro Servizio Clienti , i nostri operatori sono a disposizione per chiarire i molteplici dubbi per partecipare alle ASTE. Contatta l'inserzionista

DOMY ONLINE S.R.L.DOMY ONLINE S.R.L.
Via San Lorenzo 5 Int. 41
16123, Genova (Genova)
Visualizza Telefono

INFORMAZIONI SULL'IMMOBILE

  • Riferimento: GE75/22L1-1806-26-16
  • Tipologia: Locale commerciale in Vendita
  • Locali: 1 Locali ( 1 camera e un bagno)
  • Piano: Terra
  • Stato: Buono
  • Prezzo: 73.500 €
  • Prezzo al mq: 1.670 €
  • Modificato il: 12/03/2026
  • Scheda: SC9469593

Stabile

  • Piano: Terra
D

Mappa e indirizzo

Locale commerciale sito in via brigate partigiane 7
16033 Lavagna (Genova)
mappa mostra l'annuncio su mappa

Galleria Fotografica

Contatta l'inserzionista

DOMY ONLINE S.R.L.

DOMY ONLINE S.R.L. di Genova propone in vendita questo immobile, contattali subito!

Annunci immobiliari a Lavagna (GE)

Copyright Š 2026 PCase.it. All rights reserved. Sede operativa MILANO. P.IVA 08508420968 - Condizioni d'uso e privacy