Preferiti

Sponsorizza

Stampa

Locale commerciale in vendita a Siena - centro storico

  • 150.000€
  • zona centro storico
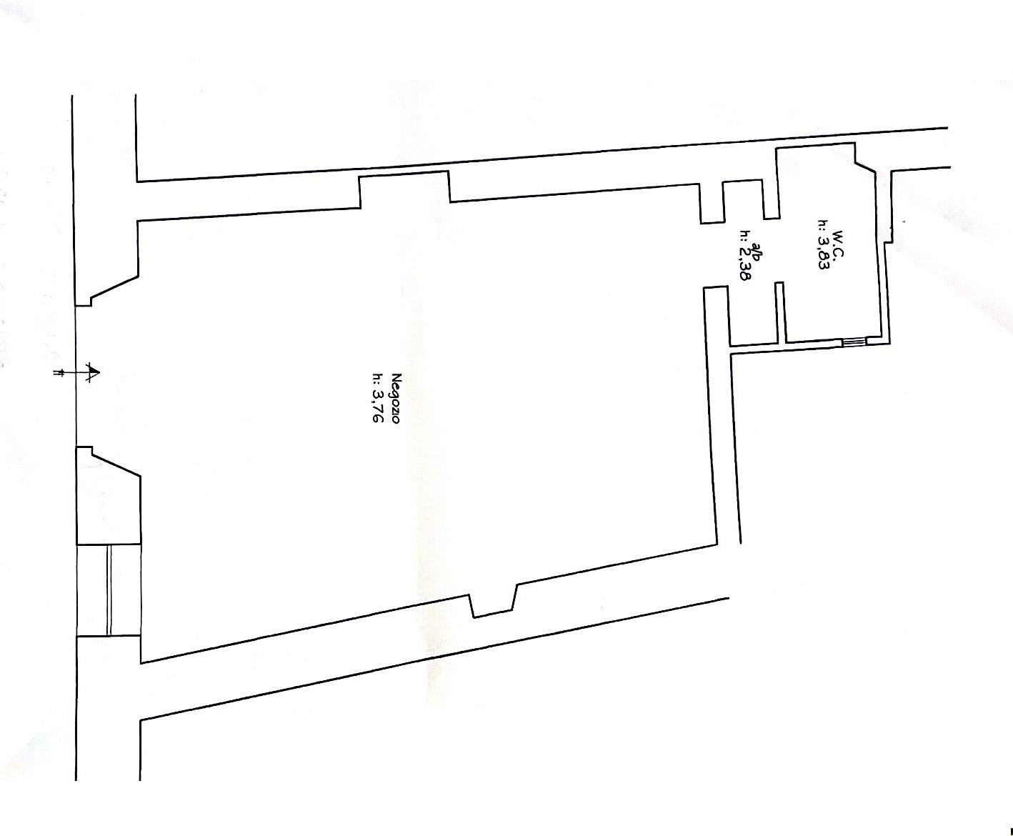
  • 42 mq
  • Vendesi

***.*******.** R/3902 - CENTRO STORICO - Zona Sud - vendesi locale commerciale di mq. 42 (altezza soffitti 3,76 ) composto da un vano ed un bagno (utenze singole). Ampia vetrina d'ingresso ed ulteriore vetrina accanto.
Questo immobile posto in un palazzo risalente al 1500, perfettamente ristrutturato nel 2000 è situato al piano terra.
L'immobile è stato ristrutturato con soffitti a travicelli e pavimento in cotto.
Questo fondo si presenta in buono stato, ideale per qualsiasi attività commerciale.
Una gemma storica nel cuore di Siena.
[Classe energetica: Esente] Contatta l'inserzionista

BALDI ImmobiliareBALDI Immobiliare
Via Cecco Angiolieri, 35
, Siena (Siena)
Visualizza Telefono

INFORMAZIONI SULL'IMMOBILE

  • Riferimento: 1398416/1103/R/3902
  • Tipologia: Locale comm.le/Fondo in Vendita
  • Piano: Terra
  • Stato: Buono
  • Bagni: 1
  • Prezzo: 150.000 €
  • Prezzo al mq: 3.571 €
  • Modificato il: 05/03/2026
  • Scheda: SC9613662

Stabile

  • Piano: Terra
  • Classe Energetica: n.d.

Mappa e indirizzo

53100 Siena (Siena), zona centro storico
mappa mostra l'annuncio su mappa

Contatta l'inserzionista

BALDI Immobiliare

BALDI Immobiliare di Siena propone in vendita questo immobile, contattali subito!

Annunci immobiliari a Siena (SI)

Copyright Š 2026 PCase.it. All rights reserved. Sede operativa MILANO. P.IVA 08508420968 - Condizioni d'uso e privacy