Preferiti

Sponsorizza

Stampa

Locale commerciale in vendita a San Miniato

  • 130.000€
  • 63 mq
  • Vendesi

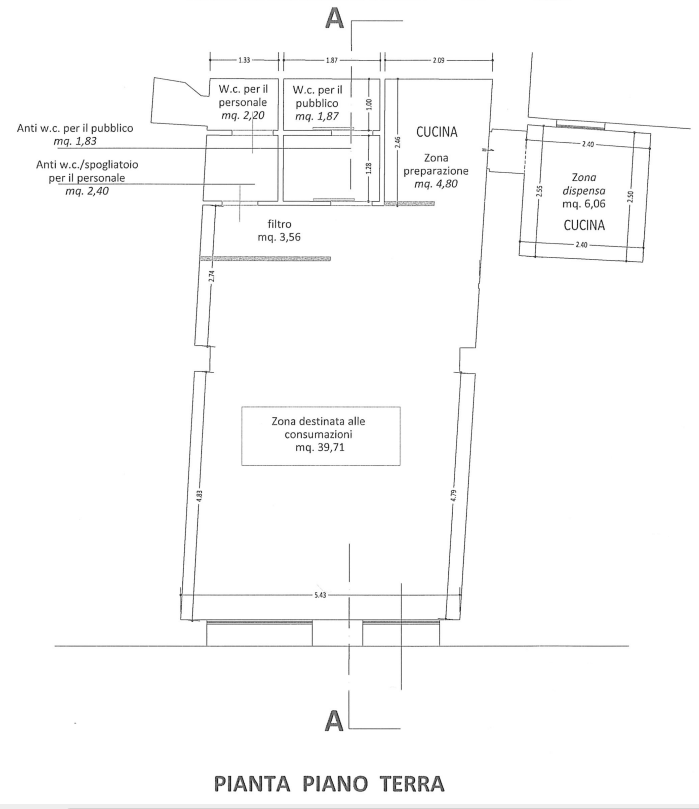
***.*******.** 2738 - Ampio locale commerciale di 63 mq in ottime condizioni, situato nel cuore di San Miniato.
Limmobile è composto da un grande vano principale attualmente adibito a zona consumazioni di circa 39 mq, oltre ad antibagno e bagno per i clienti.
Completano la proprietà un antibagno/spogliatoio con w.c. per il personale, una cucina/zona preparazione e una comoda zona dispensa.
OTTIMA OPPORTUNITÀ ANCHE COME INVESTIMENTO, IN QUANTO IL LOCALE È ATTUALMENTE AFFITTATO AD UN'ATTIVITÀ DI SUCCESSO! Contatta l'inserzionista

CIULLI Agenzia ImmobiliareCIULLI Agenzia Immobiliare
via Augusto Conti 36
, San Miniato (Pisa)
Visualizza Telefono

INFORMAZIONI SULL'IMMOBILE

  • Riferimento: 1399854/195/2738
  • Tipologia: Locale comm.le/Fondo in Vendita
  • Stato: Ottimo
  • Bagni: 2
  • Prezzo: 130.000 €
  • Prezzo al mq: 2.063 €
  • Modificato il: 02/04/2026
  • Scheda: SC9630561

Stabile

  • Classe Energetica: n.d.

Mappa e indirizzo

56028 San Miniato (Pisa)
mappa mostra l'annuncio su mappa

Contatta l'inserzionista

CIULLI Agenzia Immobiliare

CIULLI Agenzia Immobiliare di San Miniato propone in vendita questo immobile, contattali subito!

Annunci immobiliari a San Miniato (PI)

Copyright Š 2026 PCase.it. All rights reserved. Sede operativa MILANO. P.IVA 08508420968 - Condizioni d'uso e privacy