Preferiti

Sponsorizza

Stampa

Locale commerciale in vendita a Alghero

  • 400.000€
  • 1 locale
  • 133 mq
  • Vendesi

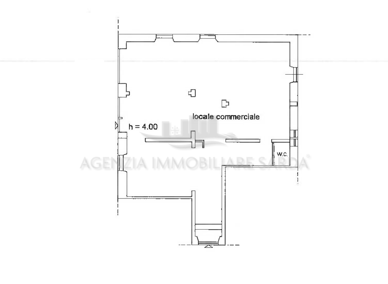
Alghero In vendita prestigioso locale commerciale in posizione strategica ad alto transito pedonale, con attività di Tabaccheria . Situato nel cuore della città, questo ampio immobile gode di una collocazione estremamente vantaggiosa, valorizzata da estese superfici vetrate che garantiscono massima visibilità. Lesposizione angolare conferisce agli interni una luminosità naturale straordinaria, ulteriormente impreziosita dallarchitettura con caratteristiche volte a botte.
I soffitti, con unaltezza di circa 4 metri, amplificano il senso di spaziosità e contribuiscono a creare un ambiente arioso e dal forte impatto estetico.
Il locale dispone di tre ingressi indipendenti e si sviluppa su una superficie pressoché quadrangolare, scandita da pilastri centrali e da un tramezzo mediano.
Questa conformazione offre una notevole flessibilità distributiva e consente una facile personalizzazione degli spazi, adattandosi a molteplici destinazioni duso commerciali o professionali.
Limmobile è attualmente dotato di infissi antisfondamento con inferriate zincate, impianto di climatizzazione e sistema di videosorveglianza.
Nel 2006 è stato sottoposto a un intervento di ristrutturazione con opere di messa in sicurezza, garantendo solidità e affidabilità strutturale.
Si tratta di unopportunità di investimento rara e di grande valore, ideale per chi desidera avviare la propria attività in una delle zone più ambite di Alghero, oppure valutare un cambio di destinazione duso per la realizzazione di unabitazione di prestigio o di una struttura ricettiva.
Si valuta con trattativa separata la vendita altresì del ramo di azienda.
Maggiori dettagli e informazioni aggiuntive verranno forniti presso i nostri uffici.
Agenzia Immobiliare Sarda è una società di intermediazione immobiliare regolarmente registrata con tutte le relative licenze ed autorizzazioni.
Tutto il materiale presentato è destinato esclusivamente a scopo informativo.
Sebbene questo materiale sia ritenuto corretto, può essere soggetto a errori, omissioni ovvero modifiche.
Tutte le informazioni sulla proprietà, inclusi, a titolo esemplificativo, metri quadrati, numero di camere, numero di camere da letto, zona e quartiere, nelle proprietà o informazioni mostrate devono essere verificate dal proprio avvocato, architetto, geometra o esperto di fiducia.
La visione delle unità immobiliari è soggetta a previa sottoscrizione del foglio di visita.
Tale dichiarazione è utile ai fini della conoscibilità dellimmobile grazie allagenzia immobiliare. Contatta l'inserzionista

Agenzia Immobiliare SardaAgenzia Immobiliare Sarda
Via F.lli Kennedy 14
07041, Alghero (Sassari)
Visualizza Telefono

INFORMAZIONI SULL'IMMOBILE

  • Riferimento: ALGHE72
  • Tipologia: Locale commerciale in Vendita
  • Locali: 1 Locali ( 1 camera e un bagno)
  • Piano: Terra
  • Stato: Ottimo
  • Prezzo: 400.000 €
  • Prezzo al mq: 3.008 €
  • Modificato il: 12/02/2026
  • Scheda: SC9508479

Stabile

  • Piano: Terra
  • Classe Energetica: n.d.

Galleria Fotografica

Contatta l'inserzionista

Agenzia Immobiliare Sarda

Agenzia Immobiliare Sarda di Alghero propone in vendita questo immobile, contattali subito!

Annunci immobiliari a Alghero (SS)

Copyright Š 2026 PCase.it. All rights reserved. Sede operativa MILANO. P.IVA 08508420968 - Condizioni d'uso e privacy