Preferiti

Sponsorizza

Stampa

Locale commerciale in vendita da ristrutturare a Genova in via teglia 107 r - bolzaneto

  • 37.125€
  • zona bolzaneto
  • 5 locali
  • 217 mq
  • Vendesi

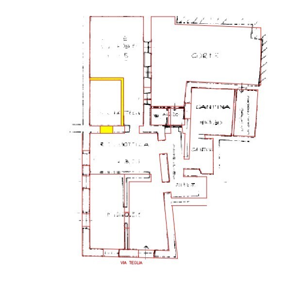
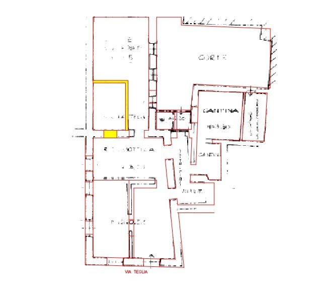
Locale commerciale sito a Genova- circoscriz Valpolcevera- Via Teglia n.107R piano terra con tre separati accessi si compone di due ampi ambienti principali con divisioni interne, tre ambienti secondari ed un servizio igienico con ampio cortile esterno, locale accessibile da questultimo.
Ben collegata con il centro cittadino, dista 8 km dal casello autostradale di Genova Ovest e 3 km dal casello di Genova Bolzaneto.
Presente slargo laterale al locale che consente sosta per carico-scarico.
- Il Prezzo visualizzato è la Base d'Asta in quanto limmobile è oggetto di esecuzione immobiliare venduto tramite Asta Giudiziaria.
- L'immobile aggiudicato, viene venduto libero e sgombro da persone cose ed ipoteche nello stato di fatto e di diritto in cui si trova.
- Non rappresentiamo il Tribunale, ma lavoriamo nell'esclusivo interesse del potenziale acquirente per garantire un acquisto sicuro.
- I consulenti di ASTE ITALIA ti assisteranno in tutte le attività dell'iter giudiziario dalla visita dell'immobile fino alla consegna chiavi.
- Contatta il nostro Servizio Clienti , i nostri operatori sono a disposizione per chiarire i molteplici dubbi per partecipare alle ASTE. Contatta l'inserzionista

DOMY ONLINE S.R.L.DOMY ONLINE S.R.L.
Via San Lorenzo 5 Int. 41
16123, Genova (Genova)
Visualizza Telefono

INFORMAZIONI SULL'IMMOBILE

  • Riferimento: GE562/24L1-0505-26-1
  • Tipologia: Locale commerciale in Vendita
  • Locali: 5 Locali
  • Piano: Terra
  • Stato: da Ristrutturare
  • Bagni: 1
  • Prezzo: 37.125 €
  • Prezzo al mq: 171 €
  • Modificato il: 20/02/2026
  • Scheda: SC9476275

Stabile

  • Piano: Terra
G

Mappa e indirizzo

Locale commerciale sito in via teglia 107 r
16159 Genova (Genova), zona bolzaneto
Bolzaneto, Pontedecimo
mappa mostra l'annuncio su mappa

Galleria Fotografica

Contatta l'inserzionista

DOMY ONLINE S.R.L.

DOMY ONLINE S.R.L. di Genova propone in vendita questo immobile, contattali subito!

Annunci immobiliari a Genova (GE)

Copyright Š 2026 PCase.it. All rights reserved. Sede operativa MILANO. P.IVA 08508420968 - Condizioni d'uso e privacy