Preferiti

Sponsorizza

Stampa

Locale commerciale in vendita da ristrutturare a Serra Riccò in via fratelli canepa 76

  • 108.974€
  • 3 locali
  • 202 mq
  • Vendesi

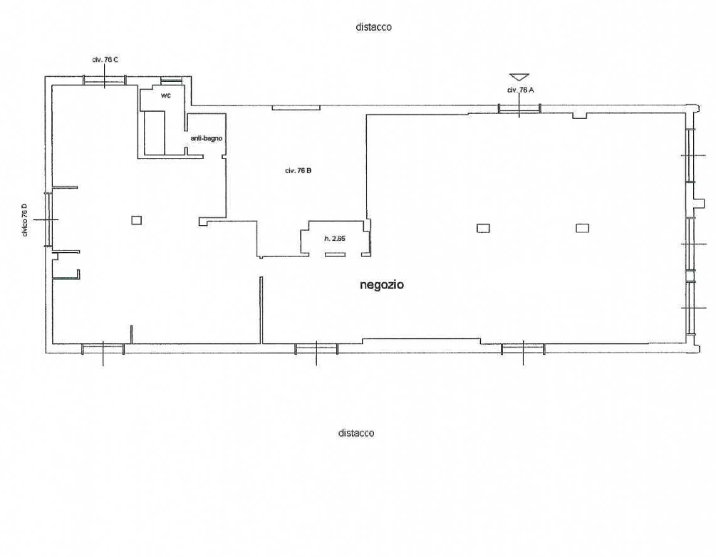
PIENA PROPRIETA' DI LOCALE AD USO NEGOZIO A SERRA RICCO' (GE) IN VIA FRATELLI CANEPA 76A-76C-76D AL PIANO TERRA CON ANNESSO SERVIZIO IGIENICO.
SUPERFICIE CATASTALE 202 MQ. CLASSE ENERGETICA F. - Il Prezzo visualizzato è la Base d'Asta in quanto limmobile è oggetto di esecuzione immobiliare venduto tramite Asta Giudiziaria.
- L'immobile aggiudicato, viene venduto libero e sgombro da persone cose ed ipoteche nello stato di fatto e di diritto in cui si trova.
- Non rappresentiamo il Tribunale, ma lavoriamo nell'esclusivo interesse del potenziale acquirente per garantire un acquisto sicuro.
- I consulenti di ASTE ITALIA ti assisteranno in tutte le attività dell'iter giudiziario dalla visita dell'immobile fino alla consegna chiavi.
- Contatta il nostro Servizio Clienti , i nostri operatori sono a disposizione per chiarire i molteplici dubbi per partecipare alle ASTE. Contatta l'inserzionista

DOMY ONLINE S.R.L.DOMY ONLINE S.R.L.
Via San Lorenzo 5 Int. 41
16123, Genova (Genova)
Visualizza Telefono

INFORMAZIONI SULL'IMMOBILE

  • Riferimento: GE520/24L17-1012-25-
  • Tipologia: Locale commerciale in Vendita
  • Locali: 3 Locali (2 camere e un bagno)
  • Piano: Terra
  • Stato: da Ristrutturare
  • Prezzo: 108.974 €
  • Prezzo al mq: 539 €
  • Modificato il: 11/12/2025
  • Scheda: SC9463598

Stabile

  • Piano: Terra
F

Mappa e indirizzo

Locale commerciale sito in via fratelli canepa 76
16010 Serra Riccò (Genova)
mappa mostra l'annuncio su mappa

Galleria Fotografica

Contatta l'inserzionista

DOMY ONLINE S.R.L.

DOMY ONLINE S.R.L. di Genova propone in vendita questo immobile, contattali subito!

Annunci immobiliari a Serra Riccò (GE)

Copyright © 2026 PCase.it. All rights reserved. Sede operativa MILANO. P.IVA 08508420968 - Condizioni d'uso e privacy