Preferiti

Sponsorizza

Stampa

Locale commerciale in vendita da ristrutturare a Roma in piazza sempione

  • 1.145.000€
  • 726 mq
  • Vendesi

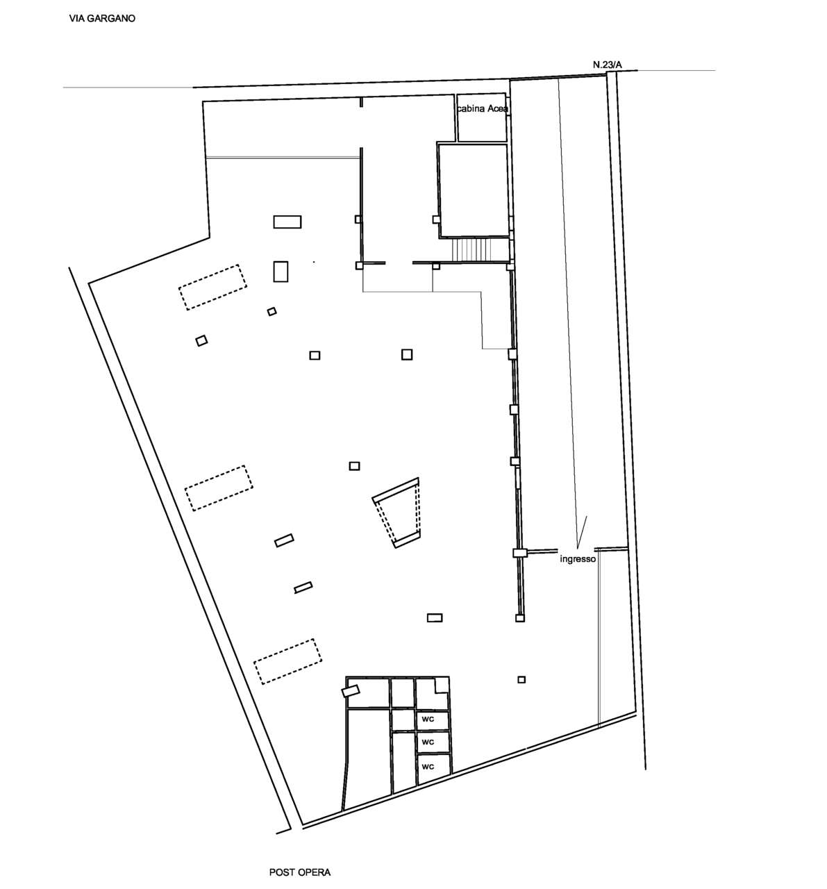
A breve distanza da Piazza Monte Baldo, proponiamo in vendita un ampio locale commerciale (categoria C/1) situato al piano seminterrato, con una superficie generosa di 726 mq. L'immobile, accessibile tramite una comoda rampa di ingresso, rappresenta una straordinaria opportunità per chi desidera dar vita a un progetto commerciale su misura.
Completamente da ristrutturare, questo spazio si presta a una vasta gamma di destinazioni d'uso: supermercati, magazzini, negozi di casalinghi, grandi distribuzioni, o soluzioni più innovative come palestre, spazi di co-working, showroom, concessionarie auto o uffici di rappresentanza.
La sua flessibilità strutturale e la posizione strategica lo rendono la scelta ideale per chi cerca una location che unisca funzionalità e possibilità di personalizzazione, garantendo il successo della propria attività in un contesto ben servito e dinamico (Cod. 11375) Contatta l'inserzionista

INFORMAZIONI SULL'IMMOBILE

  • Riferimento: 11375
  • Tipologia: Locale commerciale in Vendita
  • Piano: Interrato
  • Stato: da Ristrutturare
  • Bagni: 3
  • Prezzo: 1.145.000 €
  • Prezzo al mq: 1.577 €
  • Spazio Auto: No
  • Modificato il: 03/04/2026
  • Scheda: SC8904344

Stabile

  • Piano: Interrato su 3 totali
I.P.E.
1Kwh/m3
G

Mappa e indirizzo

Locale commerciale sito in piazza sempione
00135 Roma (Roma)
Talenti, Monte Sacro, Conca d'Oro
mappa mostra l'annuncio su mappa

Metropolitana
MB
Fermata Conca d'Oro a 770m
circa 12/14 min a piedi

Galleria Fotografica

Contatta l'inserzionista

TFT BUILDING MANAGEMENT GEST. SERV. IMMOBILIARI

TFT BUILDING MANAGEMENT GEST. SERV. IMMOBILIARI di Roma propone in vendita questo immobile, contattali subito!

Annunci simili

Annunci immobiliari a Roma (RM)

Copyright Š 2026 PCase.it. All rights reserved. Sede operativa MILANO. P.IVA 08508420968 - Condizioni d'uso e privacy