Preferiti

Sponsorizza

Stampa

Locale commerciale in affitto da ristrutturare a Colli del Tronto

  • 1€
  • 5 locali
  • 2100 mq
  • Affittasi

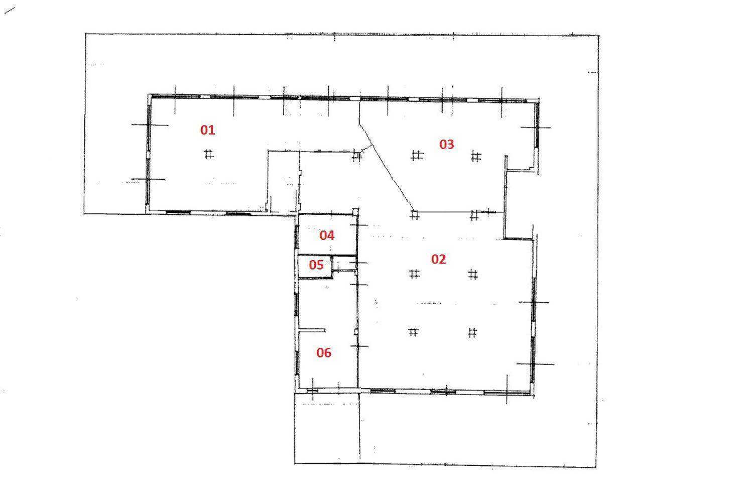
COLLI DEL TRONTO - Negozi con corte esclusiva, due garage e tre magazzini facenti parte di due fabbricati adiacenti in località Villa San Giuseppe.
Superficie sviluppata lorda totale (corti escluse): 1888,50 mq, Aree pertinenziale esterne: 622 mq. Larea in cui è ubicata la struttura è posizionata in modo centrale lungo la Salaria, ed è sita a pochi chilometri di distanza dal sito di due svincoli di ingresso ed uscita al raccordo autostradale Ascoli-Mare. I due edifici, costruiti specularmente, risultano liberi sui quattro lati e si sviluppano su tre piani fuori terra più un piano interrato.
Nel primo fabbricato si trovano un negozio con corte esclusiva e due magazzini, di cui uno al piano terra ed uno al piano sottostrada, mentre nel secondo fabbricato sono ubicati due garage ed un magazzino al piano sottostrada.
I locali al piano terra sono accessibili tramite ingresso autonomo dalla corte di pertinenza, mentre i locali al piano interrato sono raggiungibili tramite rampa esterna e dotati di basculante dingresso.
Le unità al piano terra necessitano di opere di manutenzione dovute alla presenza di umidità sul soffitto, probabilmente conseguente ad infiltrazioni dal terrazzo di copertura.
Nel locale negozio sono presenti gli impianti elettrico, idrico e termico, questultimo costituito da termoconvettori singoli a gas. Edificati tra il 1984 ed il 1987, sono dotati struttura in calcestruzzo armato, tamponamenti a cassa vuota in laterizio, solaio in latero cemento, copertura piana in parte a terrazza praticabile ed in parte a tetto con falde, infissi in alluminio per i locali a piano terra, saracinesche in lamiera dogata per i locali sottostrada, tramezzature in laterizio.
Eventuali difformità dell'immobile saranno regolarizzate dalla proprietà. IMMOBILE ANCHE IN VENDITA AL PREZZO DI EURO 840.000,00. Rif. 5511 DiLeoImmobiliare Contatta l'inserzionista

DiLeoImmobiliareDiLeoImmobiliare
via Pasubio n. 10 piano 2°
63074, San Benedetto del Tronto (Ascoli Piceno)
Visualizza Telefono

INFORMAZIONI SULL'IMMOBILE

  • Riferimento: 6312
  • Tipologia: Locale commerciale in Affitto
  • Locali: 5 Locali
  • Piano: Terra
  • Stato: da Ristrutturare
  • Prezzo: 1 €
  • Prezzo al mq: 0 €
  • Modificato il: 01/09/2025
  • Scheda: SC9425873

Stabile

  • Anno: 1984
  • Piano: Terra su 4 totali
I.P.E.
174Kwh/m2
G

Mappa e indirizzo

63030 Colli del Tronto (Ascoli Piceno)
mappa mostra l'annuncio su mappa

Galleria Fotografica

Contatta l'inserzionista

DiLeoImmobiliare

DiLeoImmobiliare di San Benedetto del Tronto propone in affitto questo immobile, contattali subito!

Annunci immobiliari a Colli del Tronto (AP)

Copyright Š 2026 PCase.it. All rights reserved. Sede operativa MILANO. P.IVA 08508420968 - Condizioni d'uso e privacy