Preferiti

Sponsorizza

Stampa

Locale commerciale in affitto a Pontedera

  • 1.800€
  • 200 mq
  • Affittasi

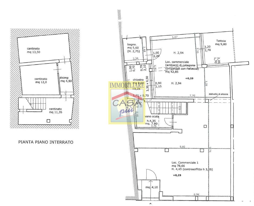
***.*******.** 2621 - PONTEDERA - In posizione centralissima ad elevato passaggio pedonale e veicolare, affittasi locali commerciali al piano terra con ingresso indipendente e ampie vetrine fronte strada, superficie circa 156 mq oltre 41 mq di scantinato e 18 mq di cortile interno.
Possibile suddividere con arredi o pareti in cartongesso in più postazioni di lavoro.
Classe Energetica G. Subito libero e disponibile.
Euro/mese 1.800 - Rif. 2621 --- A tutela della privacy l'indirizzo indicato potrebbe non corrispondere alla reale ubicazione dell'immobile in oggetto, ma trovarsi nelle vicinanze e godere sostanzialmente degli stessi servizi. Contatta l'inserzionista

CASA PIU' IMMOBILIARECASA PIU' IMMOBILIARE
Via Tosco-Romagnola, 1434
, Cascina (Pisa)
Visualizza Telefono

INFORMAZIONI SULL'IMMOBILE

  • Riferimento: 1340912/97/2621
  • Tipologia: Locale comm.le/Fondo in Affitto
  • Piano: Terra
  • Stato: Ottimo
  • Bagni: 1
  • Prezzo: 1.800 €
  • Prezzo al mq: 9 €
  • Modificato il: 03/09/2025
  • Scheda: SC9451637

Stabile

  • Piano: Terra
  • Classe Energetica: n.d.

Mappa e indirizzo

56025 Pontedera (Pisa)
mappa mostra l'annuncio su mappa

Galleria Fotografica

Contatta l'inserzionista

CASA PIU' IMMOBILIARE

CASA PIU' IMMOBILIARE di Cascina propone in affitto questo immobile, contattali subito!

Annunci simili

Annunci immobiliari a Pontedera (PI)

Copyright Š 2026 PCase.it. All rights reserved. Sede operativa MILANO. P.IVA 08508420968 - Condizioni d'uso e privacy