Preferiti

Sponsorizza

Stampa

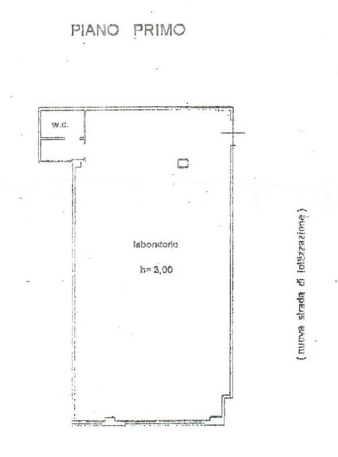
Locale commerciale in affitto a Empoli - terrafino

  • 1.000€
  • zona terrafino
  • 130 mq
  • Affittasi

***.*******.** 4/0105 - EMPOLI ZONA IDUSTRIALE TERRAFINO - AFFITTO LOCALE PIANO PRIMO - MQ. 130 - Rif. 4/0105 - Nella zona industriale Terrafino affittasi al piano prima con ascensore bell'immobile composto da un unico grande spazio oltre a servizi, adatto per uffici o studi tecnici, ben rifinito, ottimo stato, ingresso in tre unità. Già disponibile.
Si precisa che l'indirizzo presente non identifica l'esatta ubicazione dell'immobile questo al fine di tutelare la privacy e la riservatezza del venditore.
Rich. ? 1.000 oltre IVA. Classe energetica: G - Rif. 4/0105 Contatta l'inserzionista

Agenzia immobiliare Antonella GhizzaniAgenzia immobiliare Antonella Ghizzani
Piazza Matteotti, 12
, Empoli (Firenze)
Visualizza Telefono

INFORMAZIONI SULL'IMMOBILE

  • Riferimento: 1399292/17/4/0105
  • Tipologia: Locale comm.le/Fondo in Affitto
  • Piano: Primo con ascensore
  • Stato: Buono
  • Bagni: 1
  • Prezzo: 1.000 €
  • Prezzo al mq: 8 €
  • Modificato il: 10/03/2026
  • Scheda: SC9616523

Stabile

  • Piano: 1 su 2 totali
  • Ascensore: Si
  • Classe Energetica: n.d.

Mappa e indirizzo

50053 Empoli (Firenze), zona terrafino
mappa mostra l'annuncio su mappa

Galleria Fotografica

Contatta l'inserzionista

Agenzia immobiliare Antonella Ghizzani

Agenzia immobiliare Antonella Ghizzani di Empoli propone in affitto questo immobile, contattali subito!

Annunci immobiliari a Empoli (FI)

Copyright Š 2026 PCase.it. All rights reserved. Sede operativa MILANO. P.IVA 08508420968 - Condizioni d'uso e privacy