Preferiti

Sponsorizza

Stampa

Laboratorio in affitto a Firenze

  • 1.750€
  • 115 mq
  • Affittasi

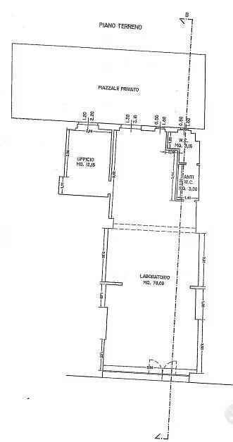
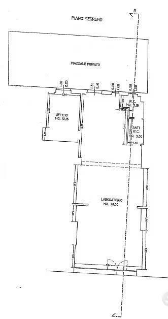
***.*******.** X2676AK - FIRENZE (Campo di Marte) - AFFITTASI locale artigianale , 96 mq netti, in zona Stadio.
Accatastato C/3 (laboratorio per arti e mestieri). Composto da Open Space di mq 80, ufficio di 12 mq con bagno a 4 elementi, finestrato e con antibagno.
Due ampie vetrine fronte strada, 2 ingressi indipendenti, anteriore e posteriore.
L'immobile ha ARIA CONDIZIONATA con pompa di calore a 4 elementi.
Finestre in alluminio con vetri anti-emissivi ad abbattimento decibel.
Ricircolo dell'aria, impianto d'allarme con videosorveglianza, canna fumaria che arriva a tetto.
L'immobile si presenta in ottime condizioni con impianti elettrici nuovi.
Attualmente adibito a laboratorio, ma è un locale ideale per diverse attività commerciali ed artigianali come palestra, studio medico o dentistico, attività ristorativa, uffici ecc. LIBERO SUBITO.
Essendo locazione da Società di Leasing, si richiedono bilanci depositati con reddito dimostrabile.
Astenersi in mancanza dei requisiti.
Classe energetica: G. Canone mensile ? 1.750. Rif. X2676AK Contatta l'inserzionista

VALERIO TERRENI ImmobiliareVALERIO TERRENI Immobiliare
Via Magellano, 12/A
, Vicopisano (Pisa)
Visualizza Telefono

INFORMAZIONI SULL'IMMOBILE

  • Riferimento: 1365893/575/X2676AK
  • Tipologia: Laboratorio in Affitto
  • Piano: Terra
  • Stato: Ottimo
  • Prezzo: 1.750 €
  • Prezzo al mq: 15 €
  • Modificato il: 09/03/2026
  • Scheda: SC9507845

Stabile

  • Piano: Terra
  • Classe Energetica: n.d.

Mappa e indirizzo

50142 Firenze (Firenze)
Campo di Marte, Libertà
mappa mostra l'annuncio su mappa

Galleria Fotografica

Contatta l'inserzionista

VALERIO TERRENI Immobiliare

VALERIO TERRENI Immobiliare di Vicopisano propone in affitto questo immobile, contattali subito!

Annunci immobiliari a Firenze (FI)

Copyright © 2026 PCase.it. All rights reserved. Sede operativa MILANO. P.IVA 08508420968 - Condizioni d'uso e privacy