Preferiti

Sponsorizza

Stampa

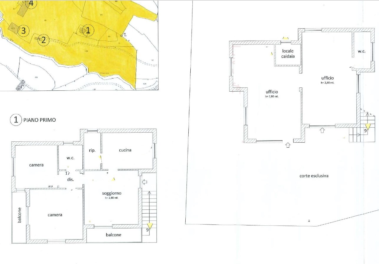
Casa indipendente in vendita a Cairo Montenotte in strada bellini 1

  • 178.819€
  • 9 locali
  • 187 mq
  • Vendesi

Piena proprietà di compendio immobiliare composto da terreni contigui a formare un unico appezzamento con entrostanti fabbricati.
- Il Prezzo visualizzato è la Base d'Asta in quanto limmobile è oggetto di esecuzione immobiliare venduto tramite Asta Giudiziaria.
- L'immobile aggiudicato, viene venduto libero e sgombro da persone cose ed ipoteche nello stato di fatto e di diritto in cui si trova.
- Non rappresentiamo il Tribunale, ma lavoriamo nell'esclusivo interesse del potenziale acquirente per garantire un acquisto sicuro.
- I consulenti di ASTE ITALIA ti assisteranno in tutte le attività dell'iter giudiziario dalla visita dell'immobile fino alla consegna chiavi.
- Contatta il nostro Servizio Clienti , i nostri operatori sono a disposizione per chiarire i molteplici dubbi per partecipare alle ASTE. Contatta l'inserzionista

DOMY ONLINE S.R.L.DOMY ONLINE S.R.L.
Via San Lorenzo 5 Int. 41
16123, Genova (Genova)
Visualizza Telefono

INFORMAZIONI SULL'IMMOBILE

  • Riferimento: SV69/25LU-0605-26-12
  • Tipologia: Casa indipendente in Vendita
  • Locali: 9 Locali
  • Piano: Terra
  • Stato: Buono
  • Bagni: 2
  • Cucina: Abitabile
  • Prezzo: 178.819 €
  • Prezzo al mq: 956 €
  • Balconi: 2
  • Modificato il: 24/02/2026
  • Scheda: SC9510915

Stabile

  • Piano: Terra
G

Mappa e indirizzo

Casa indipendente sito in strada bellini 1
17014 Cairo Montenotte (Savona)
mappa mostra l'annuncio su mappa

Galleria Fotografica

Contatta l'inserzionista

DOMY ONLINE S.R.L.

DOMY ONLINE S.R.L. di Genova propone in vendita questo immobile, contattali subito!

Annunci immobiliari a Cairo Montenotte (SV)

Copyright Š 2026 PCase.it. All rights reserved. Sede operativa MILANO. P.IVA 08508420968 - Condizioni d'uso e privacy