Preferiti

Sponsorizza

Stampa

Casa indipendente in vendita a Latiano

  • 500.000€
  • 10 locali
  • 400 mq
  • Vendesi

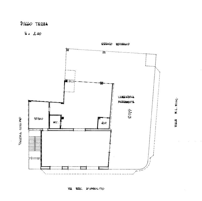
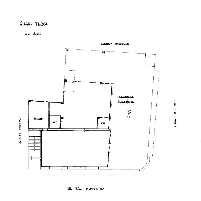
LATIANO: ad angolo tra via Ercole D'Ippolito e via Cristoforo Colombo intero stabile disposto su due livelli esteso su una superficie complessiva di circa 400 mq suddiviso tra locale commerciale di circa 200 mq al piano terra ed abitazione di circa 200 mq al piano 1°. Ottima soluzione per chi intende combinare attivit commerciale e residenza, abitando comodamente al piano di sopra o per chi intende investire.
L'appartamento si compone di ingresso, salone, soggiorno, cucina/sala da pranzo con veranda coperta, tre camere da letto, cameretta, ripostiglio e bagno.
Il locale sottostante costituito da tre vani ed il bagno.
Splendida opportunit di acquisto! Ottima posizione, questa propriet rappresenta un'opportunit unica per investire in un immobile versatile e ben ubicato.
Contattaci per non perdere questa occasione! Contatta l'inserzionista

INFORMAZIONI SULL'IMMOBILE

  • Riferimento: SG391VRG
  • Tipologia: Casa indipendente in Vendita
  • Locali: 10 Locali
  • Piano: Terra
  • Bagni: 2
  • Cucina: Abitabile
  • Prezzo: 500.000 €
  • Prezzo al mq: 1.250 €
  • Spazio Auto: No
  • Modificato il: 20/11/2025
  • Scheda: SC9494406

Stabile

  • Piano: Terra
I.P.E.
175Kwh/m2
G

Mappa e indirizzo

72022 Latiano (Brindisi)
mappa mostra l'annuncio su mappa

Galleria Fotografica

Contatta l'inserzionista

Immobiliare Santa Teresa di Marco Greco e Stefano Greco & CO. Sas

Immobiliare Santa Teresa di Marco Greco e Stefano Greco & CO. Sas di Brindisi propone in vendita questo immobile, contattali subito!

Annunci immobiliari a Latiano (BR)

Copyright Š 2026 PCase.it. All rights reserved. Sede operativa MILANO. P.IVA 08508420968 - Condizioni d'uso e privacy