Preferiti

Sponsorizza

Stampa

Casa indipendente in vendita con posto auto coperto a Garlasco

  • 175.000€
  • 3 locali
  • 120 mq
  • Vendesi

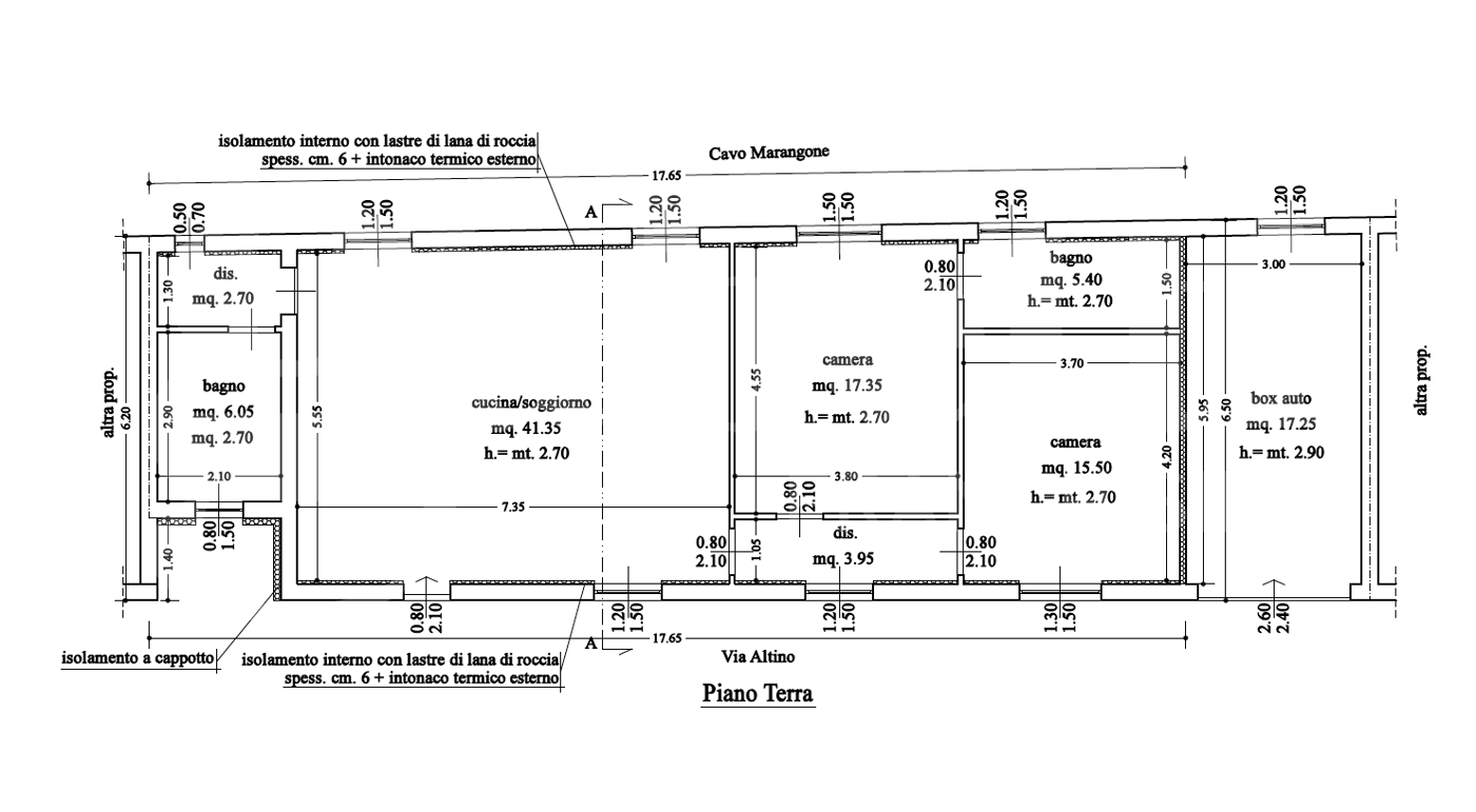
Ottima casa indipendente ad uso abitativo situata nel comune di Garlasco (PV). Con una superficie di 120 mq, questa propriet offre 3 locali e 2 bagni, ideale per una famiglia in cerca di spazio e comfort.
Ristrutturata nel 2026, la casa vanta moderni comfort come citofono, videocitofono, impianto di riscaldamento a pavimento e predisposizione per l'impianto di climatizzazione.
Con uno stato stabile ristrutturato e condizioni interne impeccabili, la casa pronta per essere abitata.
La cucina a vista e il soggiorno living creano un ambiente accogliente e luminoso, mentre l'esposizione doppia garantisce una buona luminosit naturale.
Con un box auto dotato di basculante elettrica incluso e la possibilit di godere di servizi nelle vicinanze come caff, ristoranti e stazioni di servizio, questa casa un'opportunit da non perdere.
Serramenti in PVC con doppio vetro e tapparelle.
Predisposizione allacci per eventuali installazione di pannelli solari.
Entrambi bagni con doccia Pavimentazione a scelta del cliente su capitolato presentato dal cliente.
ISOLAMENTO INTERNO CON LASTRE DI LANA DI ROCCIA E CARTONGESSO . Sottotetto isolato con 20 cm di lana di roccia.
Disponibile da subito. Contatta l'inserzionista

Dona' MauroDona' Mauro
Piazza Della Repubblica 5
, Garlasco (Pavia)
Visualizza Telefono

INFORMAZIONI SULL'IMMOBILE

  • Riferimento: Cod. rif 3311943VRG
  • Tipologia: Casa indipendente in Vendita
  • Locali: 3 Locali (2 camere, cucina abitabile con doppi servizi)
  • Piano: Terra
  • Stato: Ristrutturato
  • Prezzo: 175.000 €
  • Prezzo al mq: 1.458 €
  • Riscaldamento: Autonomo
  • Spazio Auto: Posto auto coperto
  • Modificato il: 23/04/2026
  • Scheda: SC9642540

Stabile

  • Piano: Terra
I.P.E.
120Kwh/m2
C

Mappa e indirizzo

27026 Garlasco (Pavia)
mappa mostra l'annuncio su mappa

Galleria Fotografica

Contatta l'inserzionista

Dona' Mauro

Dona' Mauro di Garlasco propone in vendita questo immobile, contattali subito!

Annunci immobiliari a Garlasco (PV)

Copyright Š 2026 PCase.it. All rights reserved. Sede operativa MILANO. P.IVA 08508420968 - Condizioni d'uso e privacy