Preferiti

Sponsorizza

Stampa

Casa indipendente in vendita nuovo a Riccò del Golfo di Spezia

  • 110.000€
  • 7 locali
  • 270 mq
  • Vendesi

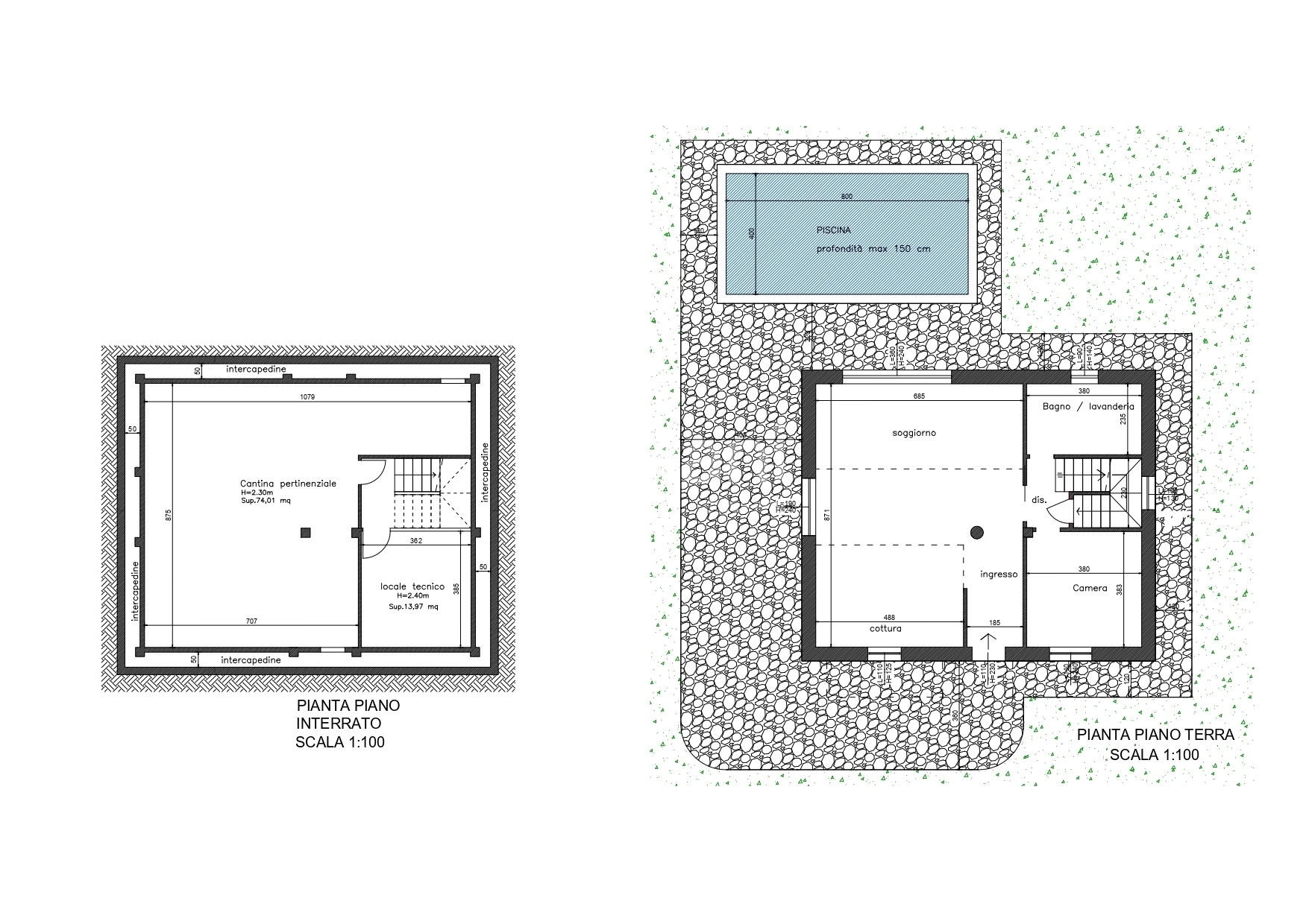
Riccò del Golfo, in vendita lotto di terreno per nuova costruzione con progetto approvato - TE181 - In posizione centrale e comoda ai servizi, proponiamo la vendita di un lotto con progetto approvato per la realizzazione di una villa monofamiliare di nuova costruzione, attualmente in corso d'opera e con strutture del piano interrate già avviate.
L'intervento è regolarmente autorizzato tramite permesso di costruire valido, e comprende tutta la documentazione tecnica necessaria - relazioni, deposito sismico, PSC, geologica, termotecnica.
Le prime opere strutturali sono state già eseguite -scavi, fondazioni e piano interrato.
La villa si sviluppa su due livelli fuori terra, più ampio piano interrato, così distribuiti: luminosa zona giorno open space, una camera e bagno al piano terra.
Due camere matrimoniali ciascuna con cabina armadi, rispettivamente 21,5 m e 19,5 m, due camere singole e bagno al primo piano.
Ampio locale deposito + locale tecnico al piano interrato.
Giardino e piscina prevista in progetto m. 48, area parcheggio già conforme, accesso carrabile privato e pavimentazioni in pietra locale autorizzate.
Recinzione secondo prescrizioni comunali.
Disponibile documentazione tecnica completa.
Predisposizione pozzetto acqua già realizzata.
Ad oggi sono stati completati: tracciamento e perimetrazione del lotto, scavi di sbancamento, predisposizione fondazioni, prime opere strutturali del piano interrato con platea, muri contro terra e impermeabilizzazione.
È possibile frazionare ledificio in due unità abitative indipendenti, presentando variante al titolo edilizio.
Allaccio fognario da realizzare.
Soluzione ideale per chi cerca una nuova costruzione personalizzabile con ampi spazi e comfort moderni. Contatta l'inserzionista

Albani RiccardoAlbani Riccardo
Via Sarzana 1029 La Spezia e Via Roma 14 Lerici
19136, La Spezia (La Spezia)
Visualizza Telefono

INFORMAZIONI SULL'IMMOBILE

  • Riferimento: TE181
  • Tipologia: Casa indipendente in Vendita
  • Locali: 7 Locali
  • Stato: Nuovo
  • Bagni: 2
  • Cucina: Angolo cottura
  • Prezzo: 110.000 €
  • Prezzo al mq: 407 €
  • Balconi: 3
  • Modificato il: 05/01/2026
  • Scheda: SC9576984

Stabile

  • Anno: 2025
  • Classe Energetica: Immobile non soggetto a certificazione energetica

Mappa e indirizzo

19020 Riccò del Golfo di Spezia (La Spezia)
mappa mostra l'annuncio su mappa

Galleria Fotografica

Contatta l'inserzionista

Albani Riccardo

Albani Riccardo di La Spezia propone in vendita questo immobile, contattali subito!

Annunci immobiliari a Riccò del Golfo di Spezia (SP)

Copyright © 2026 PCase.it. All rights reserved. Sede operativa MILANO. P.IVA 08508420968 - Condizioni d'uso e privacy