Preferiti

Sponsorizza

Stampa

Casa indipendente in vendita da ristrutturare a Incisa Scapaccino in via vaglimondo alta 15

  • 21.462€
  • 11 locali
  • 276 mq
  • Vendesi

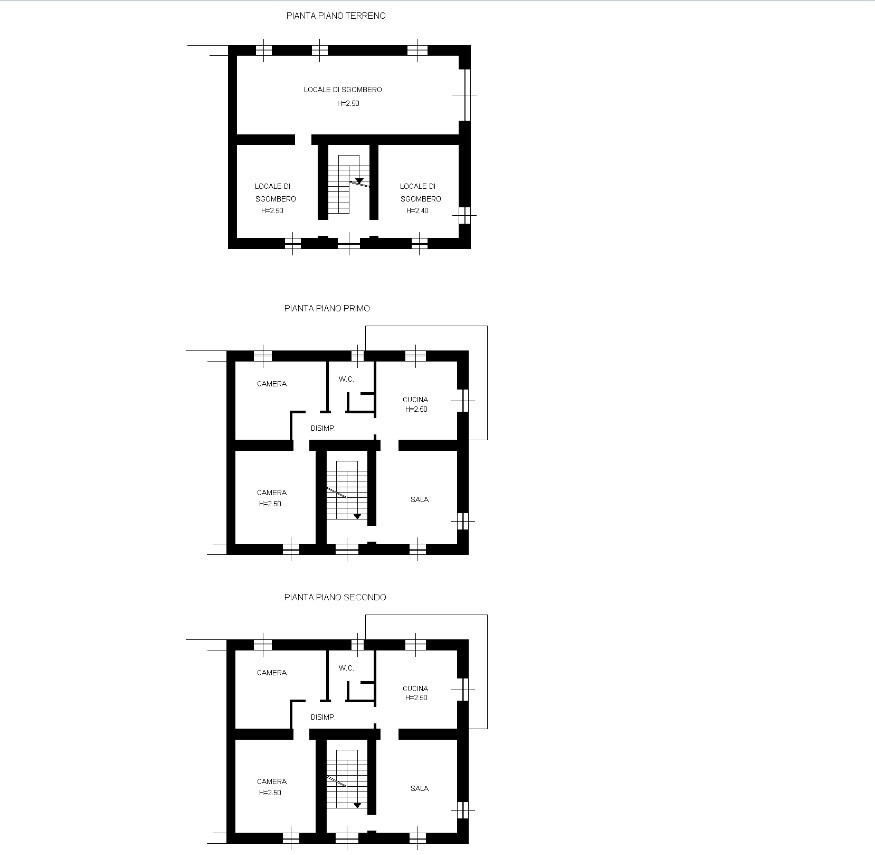
Abitazione sviluppata su tre piani fuori terra con sedime di corte e terreni.
Terreno incolto ricadente in zona a tutela ambientale avente forma irregolare giacitura pianeggiante formante corpo unico con il fabbricato di abitazione.
Terreno agricolo incolto giacitura pianeggiante formante corpo unico con il fabbricato di abitazione.
- Il Prezzo visualizzato è la Base d'Asta in quanto limmobile è oggetto di esecuzione immobiliare venduto tramite Asta Giudiziaria.
- L'immobile aggiudicato, viene venduto libero e sgombro da persone cose ed ipoteche nello stato di fatto e di diritto in cui si trova.
- Non rappresentiamo il Tribunale, ma lavoriamo nell'esclusivo interesse del potenziale acquirente per garantire un acquisto sicuro.
- I consulenti di ASTE ITALIA ti assisteranno in tutte le attività dell'iter giudiziario dalla visita dell'immobile fino alla consegna chiavi.
- Contatta il nostro Servizio Clienti , i nostri operatori sono a disposizione per chiarire i molteplici dubbi per partecipare alle ASTE. Contatta l'inserzionista

DOMY ONLINE S.R.L.DOMY ONLINE S.R.L.
Via San Lorenzo 5 Int. 41
16123, Genova (Genova)
Visualizza Telefono

INFORMAZIONI SULL'IMMOBILE

  • Riferimento: AL247/24LU-1407-26-1
  • Tipologia: Casa indipendente in Vendita
  • Locali: 11 Locali
  • Piano: Terra
  • Stato: da Ristrutturare
  • Bagni: 2
  • Cucina: Abitabile
  • Prezzo: 21.462 €
  • Prezzo al mq: 78 €
  • Balconi: 2
  • Modificato il: 30/03/2026
  • Scheda: SC9628666

Stabile

  • Piano: Terra
G

Mappa e indirizzo

Casa indipendente sito in via vaglimondo alta 15
14045 Incisa Scapaccino (Asti)
mappa mostra l'annuncio su mappa

Galleria Fotografica

Contatta l'inserzionista

DOMY ONLINE S.R.L.

DOMY ONLINE S.R.L. di Genova propone in vendita questo immobile, contattali subito!

Annunci immobiliari a Incisa Scapaccino (AT)

Copyright Š 2026 PCase.it. All rights reserved. Sede operativa MILANO. P.IVA 08508420968 - Condizioni d'uso e privacy