Preferiti

Sponsorizza

Stampa

Casa indipendente in vendita da ristrutturare a Mele in via alla stazione 16

  • 41.133€
  • 9 locali
  • 217 mq
  • Vendesi

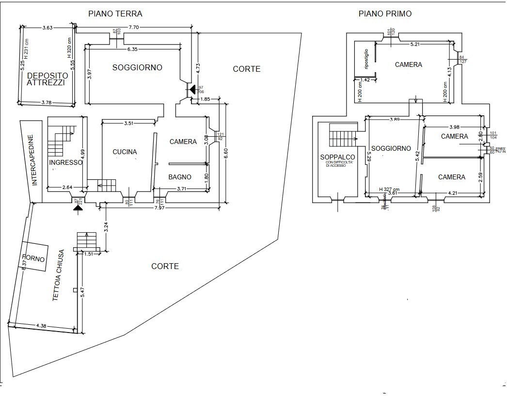
Piena Proprietà dellimmobile ad uso abitazione, sito in Mele (GE), Via alla Stazione, civico n. 16. Trattasi di abitazione su 2 piani, con annessi deposito attrezzi e tettoia chiusa, raggiungibile tramite strada sterrata.
Limmobile sviluppa una superficie convenzionale pari a circa mq 216,68 oltre al deposito attrezzi di mq 4,48, la veranda-tettoria di mq 38,71 ed il cortile di mq 28,22. - Il Prezzo visualizzato è la Base d'Asta in quanto limmobile è oggetto di esecuzione immobiliare venduto tramite Asta Giudiziaria.
- L'immobile aggiudicato, viene venduto libero e sgombro da persone cose ed ipoteche nello stato di fatto e di diritto in cui si trova.
- Non rappresentiamo il Tribunale, ma lavoriamo nell'esclusivo interesse del potenziale acquirente per garantire un acquisto sicuro.
- I consulenti di ASTE ITALIA ti assisteranno in tutte le attività dell'iter giudiziario dalla visita dell'immobile fino alla consegna chiavi.
- Contatta il nostro Servizio Clienti , i nostri operatori sono a disposizione per chiarire i molteplici dubbi per partecipare alle ASTE. Contatta l'inserzionista

DOMY ONLINE S.R.L.DOMY ONLINE S.R.L.
Via San Lorenzo 5/41
16123, Genova (Genova)
Visualizza Telefono

INFORMAZIONI SULL'IMMOBILE

  • Riferimento: GE61/22LU-1902-26-13
  • Tipologia: Casa indipendente in Vendita
  • Locali: 9 Locali
  • Piano: Terra
  • Stato: da Ristrutturare
  • Bagni: 1
  • Prezzo: 41.133 €
  • Prezzo al mq: 190 €
  • Modificato il: 20/02/2026
  • Scheda: SC9605319

Stabile

  • Piano: Terra
G

Mappa e indirizzo

Casa indipendente sito in via alla stazione 16
16010 Mele (Genova)
mappa mostra l'annuncio su mappa

Galleria Fotografica

Contatta l'inserzionista

DOMY ONLINE S.R.L.

DOMY ONLINE S.R.L. di Genova propone in vendita questo immobile, contattali subito!

Annunci immobiliari a Mele (GE)

Copyright Š 2026 PCase.it. All rights reserved. Sede operativa MILANO. P.IVA 08508420968 - Condizioni d'uso e privacy