Preferiti

Sponsorizza

Stampa

Casa indipendente in vendita da ristrutturare a Sorbolo Mezzani in strada del fienile 30

  • 130.000€
  • 5 locali
  • 550 mq
  • Vendesi

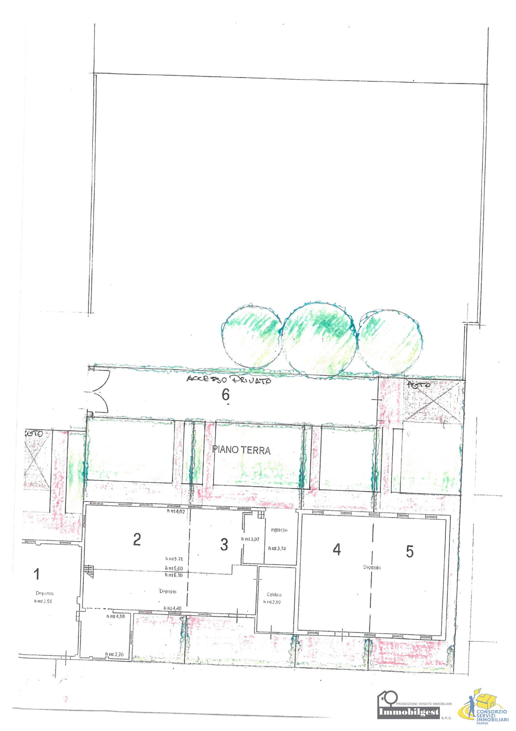
ADIACENZE SORBOLO nella frazione di Enzano vendiamo fabbricato da recuperare ove si possono realizzare circa 500 mq. di Superficie Utile con giardino privati e posti auto. Il progetto prevede cinque unità abitative di circa 100 mq. ciascuna.
La richiesta economica è di ? 130.000,00. Ulteriore possibilità edificatoria ex novo su lotto adiacente di altri 650 mq. di Superficie Utile che viene ceduto al costo di ? 100.000,00. Disponiamo inoltre di tecnico pronto a presentare il progetto e a seguire i lavori.
Per info Tel Molino 335-8486205 Contatta l'inserzionista

INFORMAZIONI SULL'IMMOBILE

  • Riferimento: IMENZ
  • Tipologia: Casa indipendente in Vendita
  • Locali: 5 Locali
  • Stato: da Ristrutturare
  • Prezzo: 130.000 €
  • Prezzo al mq: 236 €
  • Modificato il: 16/05/2023
  • Scheda: SC9421119

Stabile

  • Anno: 1950
I.P.E.
300Kwh/m2
G

Mappa e indirizzo

Casa indipendente sito in strada del fienile 30
43058 Sorbolo Mezzani (Parma)
mappa mostra l'annuncio su mappa

Galleria Fotografica

Contatta l'inserzionista

Immobilgest snc di Feher Istvan e Molino Filippo

Immobilgest snc di Feher Istvan e Molino Filippo di Parma propone in vendita questo immobile, contattali subito!

Annunci immobiliari a Sorbolo Mezzani (PR)

Copyright Š 2026 PCase.it. All rights reserved. Sede operativa MILANO. P.IVA 08508420968 - Condizioni d'uso e privacy