Preferiti

Sponsorizza

Stampa

Casa indipendente in vendita da ristrutturare a San Giovanni in Marignano - fonte maggi

  • 170.250€
  • zona fonte maggi
  • 8 locali
  • 250 mq
  • Vendesi

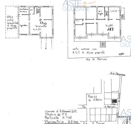
Vendesi in Asta a San Giovanni in Marignano, Soluzione Indipendente composta al Pian Rialzato da pranzo/soggiorno, cucina, bagno, quattro camere, wc - doccia, disimpegno per la superficie totale lorda di circa 155 metri quadrati, oltre a due balconi rispettivamente di circa 22 e 2 metri quadrati; al PT (seminterrato) da tre locali uso tavernetta, bagno, sgombero e vano caldaia per totali 112 metri quadrati lordi circa, garage di circa 44 mq e scoperto pertinenziale circostante di circa mq 225 esclusa la superficie degli scivoli e rampe scale scoperte al PR. Si precisa che la superficie della corte è stata determinata sulla base della consistenza catastale, non essendo stata svolta alcuna verifica, in quanto esorbitante lincarico ricevuto, sulleffettiva posizione degli allineamenti di confine.
Per Info ed appuntamenti: 800129769 oppure 3519120169.
Possibilità di Mutuo prima casa al 100% in 20 anni. ***.*******.** - Servizio Aste Contatta l'inserzionista

Consulenti Immobiliari Associati SrlConsulenti Immobiliari Associati Srl
V.le Guglielmo Oberdan 444
47521, Cesena (Forlė-Cesena)
Visualizza Telefono

INFORMAZIONI SULL'IMMOBILE

  • Riferimento: 2573
  • Tipologia: Casa indipendente in Vendita
  • Locali: 8 Locali
  • Stato: da Ristrutturare
  • Prezzo: 170.250 €
  • Prezzo al mq: 681 €
  • Modificato il: 11/01/2025
  • Scheda: SC9425844

Stabile

  • Classe Energetica: n.d.

Mappa e indirizzo

47842 San Giovanni in Marignano (Rimini), zona fonte maggi
mappa mostra l'annuncio su mappa

Galleria Fotografica

Contatta l'inserzionista

Consulenti Immobiliari Associati Srl

Consulenti Immobiliari Associati Srl di Cesena propone in vendita questo immobile, contattali subito!

Annunci immobiliari a San Giovanni in Marignano (RN)

Copyright Š 2026 PCase.it. All rights reserved. Sede operativa MILANO. P.IVA 08508420968 - Condizioni d'uso e privacy