Preferiti

Sponsorizza

Stampa

Casa indipendente in vendita con posto auto coperto a Piacenza

  • 460.000€
  • 3 locali
  • 190 mq
  • Vendesi

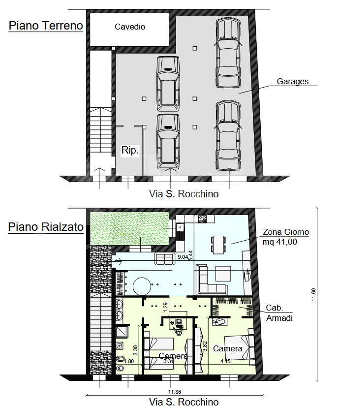
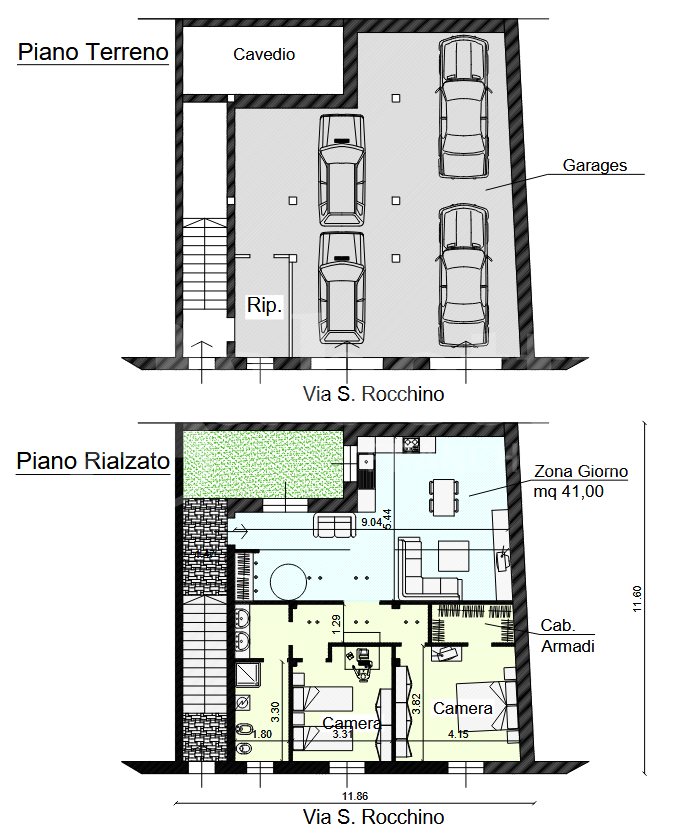
In zona centrale della citt, a pochi passi da piazza Borgo, proponiamo porzione di caseggiato terracielo con possibilit di scelta sulla distribuzione degli spazi e le finiture interne.
L'immobile si compone di una parte abitativa al piano primo di 105 mq oltre a piacevole soppalco a sbalzo su zona living, pi un piano terra di pari metratura utilizzabile per intero come box auto oppure come depandance o locale di servizio con lavanderia e studio. Contatta l'inserzionista

Gruppo CPiace SrlGruppo CPiace Srl
Piazzale Medaglie D'Oro 7
, Piacenza (Piacenza)
Visualizza Telefono

INFORMAZIONI SULL'IMMOBILE

  • Riferimento: Cod. rif 3283952VRG
  • Tipologia: Casa indipendente in Vendita
  • Locali: 3 Locali (2 camere, cucina abitabile e 3 bagni)
  • Piano: Rialzato
  • Stato: da Ristrutturare
  • Prezzo: 460.000 €
  • Prezzo al mq: 2.421 €
  • Spazio Auto: Posto auto coperto
  • Cantina: Si
  • Modificato il: 19/01/2026
  • Scheda: SC9547788

Stabile

  • Piano: Rialzato
  • Classe Energetica: n.d.

Mappa e indirizzo

29100 Piacenza (Piacenza)
Centro
mappa mostra l'annuncio su mappa

Galleria Fotografica

Contatta l'inserzionista

Gruppo CPiace Srl

Gruppo CPiace Srl di Piacenza propone in vendita questo immobile, contattali subito!

Annunci simili

Annunci immobiliari a Piacenza (PC)

Copyright Š 2026 PCase.it. All rights reserved. Sede operativa MILANO. P.IVA 08508420968 - Condizioni d'uso e privacy