Preferiti

Sponsorizza

Stampa

Casa indipendente in vendita con giardino a Campi Bisenzio in via san martino

  • 650.000€
  • 480 mq
  • Vendesi

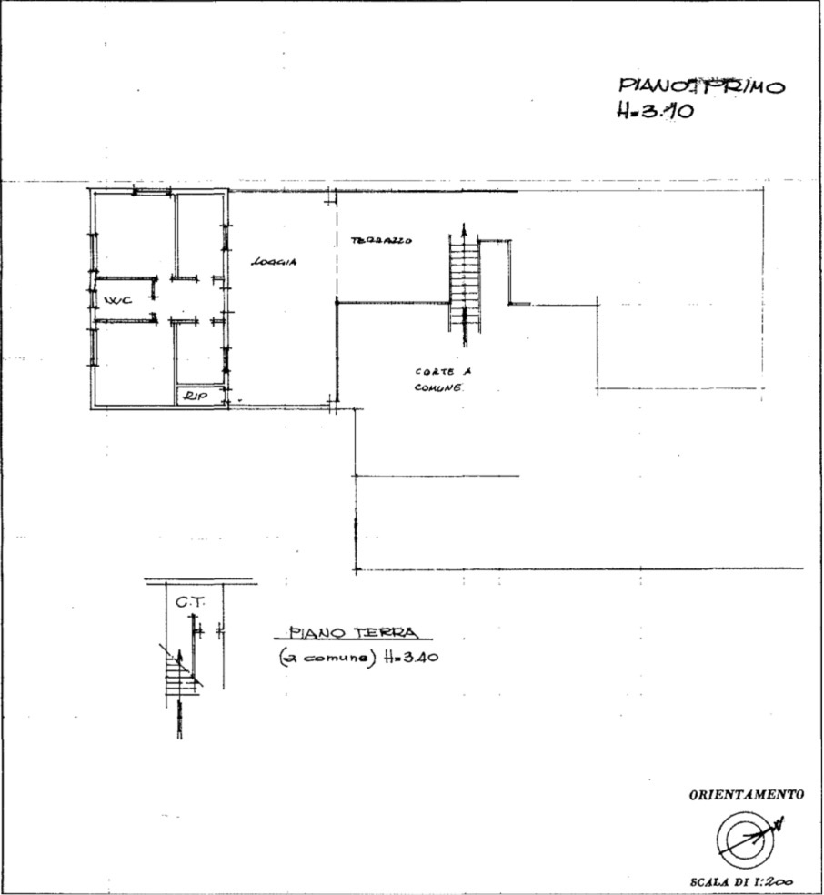
CAMPI BISENZIO, SAN MARTINO: AMPIA PROPRIETÀ di 480 mq. FORMATA DA 2 GRANDI APPARTAMENTI, TERRAZZE, LOGGIA, MAGAZZINI, CORTE CON ACCESSO CARRABILE E 2000 mq di TERRENO.
Situato nel centro della zona residenziale di SAN MARTINO, in posizione strategica vicina a tutti i principali servizi, proponiamo in VENDITA un complesso immobiliare di grande potenziale.
la proprietà è composta: al piano primo, da 2 ampi APPARTAMENTI indipendenti (DA RISTRUTTURARE), caratterizzati da grandi spazi e ottima esposizione, di 4 vani, con bagno finestrato, 1 TERRAZZO di 60 mq e 1 LOGGIA di 120 mq, al piano terra da due FONDI attualmente ad uso MAGAZZINO.
Completa la proprietà un ampia CORTE CON ACCESSO CARRABILE e un TERRENO DI 2000 mq. Soluzione ideale per nuclei familiari numerosi che desiderano vivere vicini mantenendo l'indipendenza.
Possibilità di realizzare anche DUE TERRATETTI INDIPENDENTI.
Prezzo richiesto 650.000. Contattaci per maggiori informazioni e per prenotare una visita. Contatta l'inserzionista

FRA-MO IMMOBILIAREFRA-MO IMMOBILIARE
VIA PISTOIESE, 135
50058, Signa (Firenze)
Visualizza Telefono

INFORMAZIONI SULL'IMMOBILE

  • Riferimento: L1339
  • Tipologia: Casa indipendente in Vendita
  • Piano: Terra
  • Stato: da Ristrutturare
  • Bagni: 2
  • Cucina: Abitabile
  • Prezzo: 650.000 €
  • Prezzo al mq: 1.354 €
  • Balconi: 1
  • Terrazzi: 1
  • Riscaldamento: Autonomo
  • Giardino: Privato - 2000 Mq
  • Cantina: Si
  • Modificato il: 23/01/2026
  • Scheda: SC9578293

Stabile

  • Piano: Terra su 2 totali
G

Mappa e indirizzo

Casa indipendente sito in via san martino
50013 Campi Bisenzio (Firenze)
mappa mostra l'annuncio su mappa

Galleria Fotografica

Contatta l'inserzionista

FRA-MO IMMOBILIARE

FRA-MO IMMOBILIARE di Signa propone in vendita questo immobile, contattali subito!

Annunci simili

Annunci immobiliari a Campi Bisenzio (FI)

Copyright Š 2026 PCase.it. All rights reserved. Sede operativa MILANO. P.IVA 08508420968 - Condizioni d'uso e privacy