Preferiti

Sponsorizza

Stampa

Casa indipendente in vendita con giardino a Beverino in via paolo boracchia 13

  • 54.170€
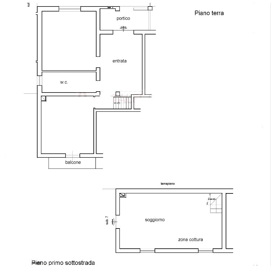
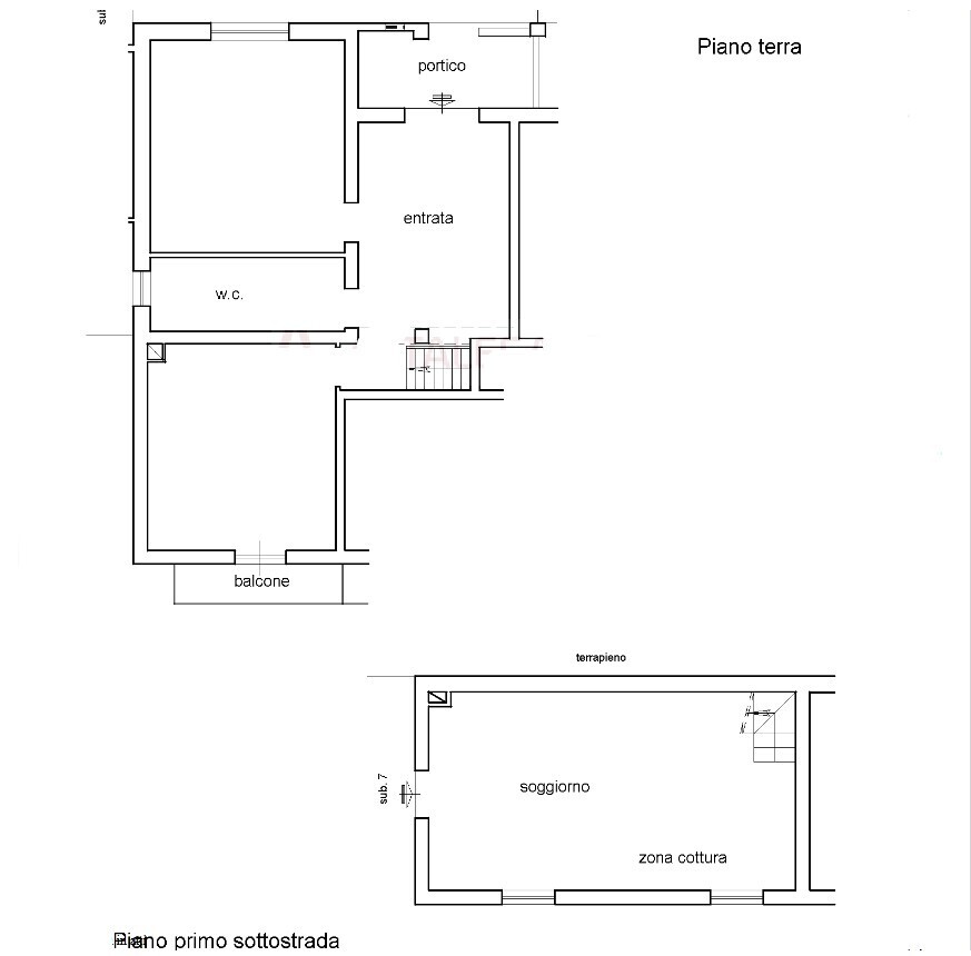
  • 8 locali
  • 195 mq
  • Vendesi

In Comune di Beverino (SP) alla frazione Canevolivo in Via Paolo Boracchia n. 13: piena ed intera proprietà di porzione semi indipendente di fabbricato abitativo e relative pertinenze con annesso terreno ortivo cui risulta entrostante un manufatto ad uso deposito e con annesso ulteriore piccolo frastaglio di terreno ortivo disgiunto.
- Il Prezzo visualizzato è la Base d'Asta in quanto limmobile è oggetto di esecuzione immobiliare venduto tramite Asta Giudiziaria.
- L'immobile aggiudicato, viene venduto libero e sgombro da persone cose ed ipoteche nello stato di fatto e di diritto in cui si trova.
- Non rappresentiamo il Tribunale, ma lavoriamo nell'esclusivo interesse del potenziale acquirente per garantire un acquisto sicuro.
- I consulenti di ASTE ITALIA ti assisteranno in tutte le attività dell'iter giudiziario dalla visita dell'immobile fino alla consegna chiavi.
- Contatta il nostro Servizio Clienti , i nostri operatori sono a disposizione per chiarire i molteplici dubbi per partecipare alle ASTE. Contatta l'inserzionista

DOMY ONLINE S.R.L.DOMY ONLINE S.R.L.
Via San Lorenzo 5 Int. 41
16123, Genova (Genova)
Visualizza Telefono

INFORMAZIONI SULL'IMMOBILE

  • Riferimento: SP43/20LU-2904-26-11
  • Tipologia: Casa indipendente in Vendita
  • Locali: 8 Locali
  • Piano: Interrato
  • Stato: da Ristrutturare
  • Bagni: 2
  • Cucina: Angolo cottura
  • Prezzo: 54.170 €
  • Prezzo al mq: 278 €
  • Balconi: 2
  • Giardino: Privato
  • Modificato il: 11/03/2026
  • Scheda: SC9617022

Stabile

  • Piano: Interrato
G

Mappa e indirizzo

Casa indipendente sito in via paolo boracchia 13
19020 Beverino (La Spezia)
mappa mostra l'annuncio su mappa

Galleria Fotografica

Contatta l'inserzionista

DOMY ONLINE S.R.L.

DOMY ONLINE S.R.L. di Genova propone in vendita questo immobile, contattali subito!

Annunci immobiliari a Beverino (SP)

Copyright Š 2026 PCase.it. All rights reserved. Sede operativa MILANO. P.IVA 08508420968 - Condizioni d'uso e privacy