Preferiti

Sponsorizza

Stampa

Casa indipendente in vendita con giardino a Castiglione della Pescaia in via dell'uliveto

  • 850.000€
  • 36 locali
  • 137 mq
  • Vendesi

"TOSCANA MARE CASTIGLIONE DELLA PESCAIA Nuova villetta centrale con fotovoltaico, VMC e giardini privati, a pochi passi dal centro e dal mare A Castiglione della Pescaia proponiamo una villetta centrale di nuova costruzione appena ultimata, inserita in una trifamiliare realizzata con soluzioni impiantistiche e costruttive di livello elevato.
La posizione resta uno dei suoi punti di forza più evidenti: riservata e fuori dal traffico, ma a pochi metri dal corso e con la spiaggia raggiungibile comodamente a piedi.
La casa è pensata per offrire comfort abitativo, efficienza e gestione moderna degli spazi, grazie a dotazioni oggi sempre più richieste: impianto fotovoltaico, riscaldamento e aria condizionata con pompe di calore, infissi di alta qualità e ventilazione meccanica controllata (VMC) con recupero di calore.
Anche in questo caso, ogni piano è dotato di quadro elettrico e controllo autonomo della climatizzazione.
Labitazione si sviluppa su circa 140 mq interni, con ambienti ben distribuiti e una gestione razionale degli spazi, sia interni che esterni.
Allesterno dispone di due giardini privati, uno anteriore con posto auto e uno sul retro, più ampio e riservato, per una superficie esterna complessiva di circa 100 mq. Al piano terra troviamo una zona giorno luminosa e ben organizzata, collegata alla cucina abitabile, oltre a un primo bagno.
Al primo piano si sviluppa la zona notte, composta da due camere matrimoniali e secondo bagno.
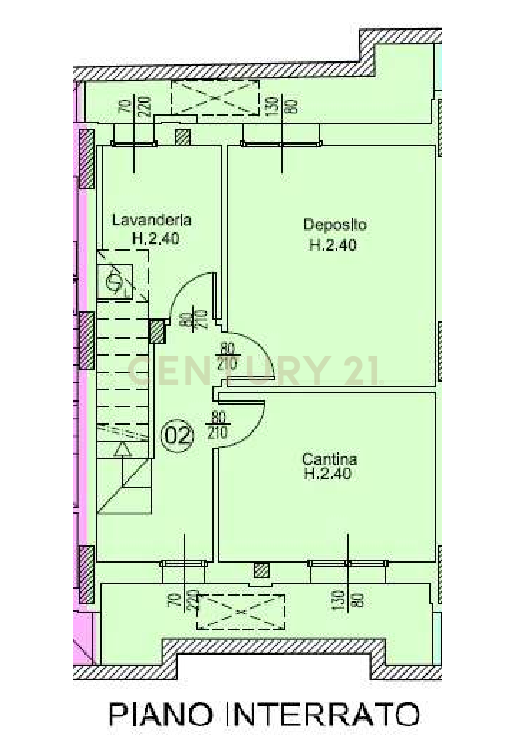
Il piano interrato aggiunge ulteriore funzionalità alla casa, con spazi accessori ideali come cantina, lavanderia o locali di servizio, in continuità con lelevato standard costruttivo dellintera proprietà. Anche qui, a protezione della struttura dallumidità, è presente uno scannafosso che separa ledificio dal terreno circostante.
In un mercato dove, a parità di prezzo, spesso si rinuncia a qualità, posizione o condizioni dellimmobile, questa proprietà offre una combinazione che altrove, semplicemente, non cè." Contatta l'inserzionista

CENTURY 21 Silver 3CENTURY 21 Silver 3
Via Ponte Giorgini, 25
58043, Castiglione della Pescaia (Grosseto)
Visualizza Telefono

INFORMAZIONI SULL'IMMOBILE

  • Riferimento: 37881033-21
  • Tipologia: Casa indipendente in Vendita
  • Locali: 36 Locali
  • Piano: Terra
  • Stato: Nuovo
  • Bagni: 2
  • Cucina: Abitabile
  • Prezzo: 850.000 €
  • Prezzo al mq: 6.204 €
  • Balconi: 1
  • Giardino: Privato
  • Modificato il: 31/03/2026
  • Scheda: SC9627120

Stabile

  • Anno: 2026
  • Piano: Terra su 2 totali
A4

Mappa e indirizzo

Casa indipendente sito in via dell'uliveto
58043 Castiglione della Pescaia (Grosseto)
mappa mostra l'annuncio su mappa

Galleria Fotografica

Contatta l'inserzionista

CENTURY 21 Silver 3

CENTURY 21 Silver 3 di Castiglione della Pescaia propone in vendita questo immobile, contattali subito!

Annunci simili

Annunci immobiliari a Castiglione della Pescaia (GR)

Copyright Š 2026 PCase.it. All rights reserved. Sede operativa MILANO. P.IVA 08508420968 - Condizioni d'uso e privacy