Preferiti

Sponsorizza

Stampa

Casa indipendente in vendita con giardino a Roma in via del fosso di monte oliviero 130

  • 189.000€
  • 6 locali
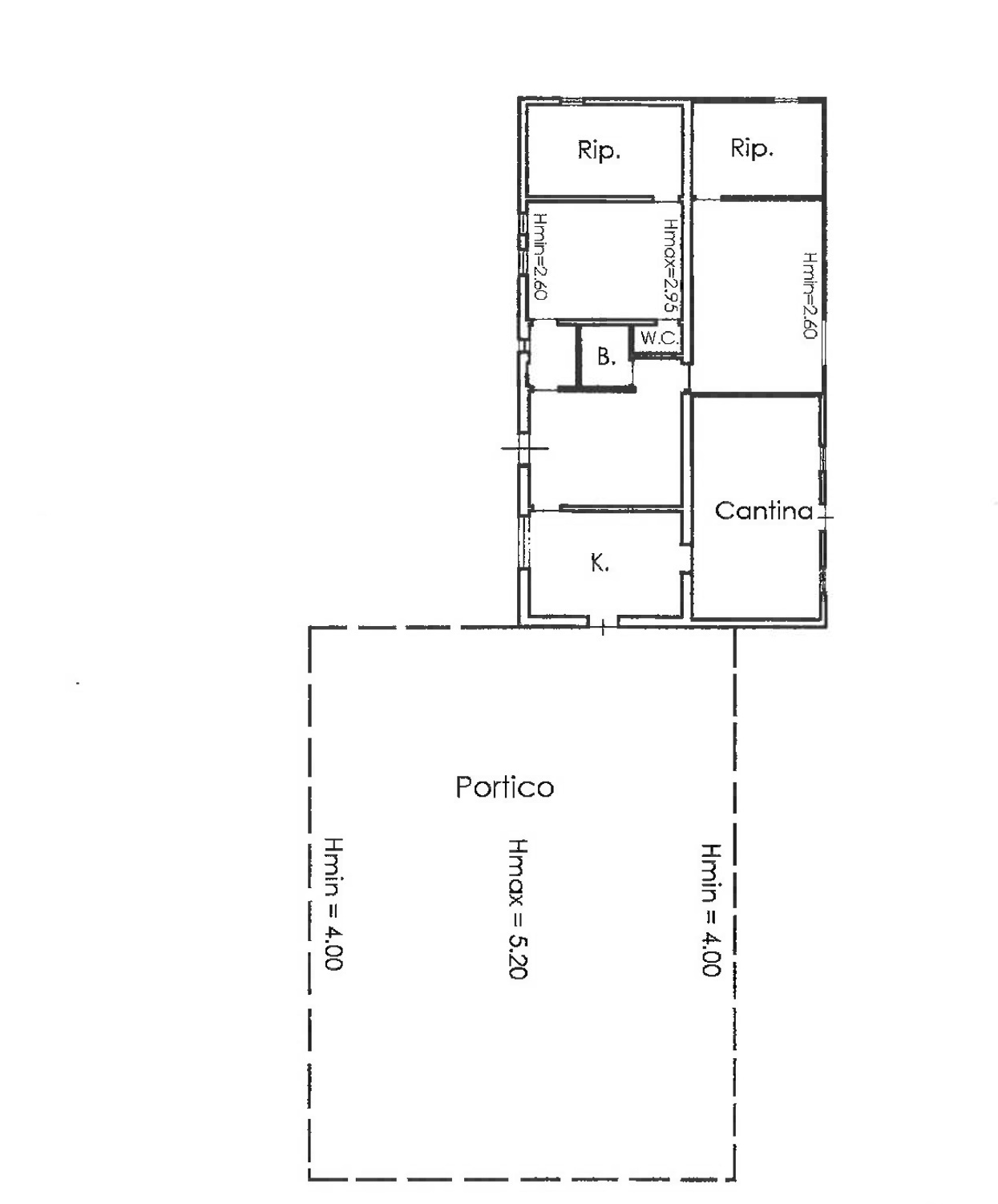
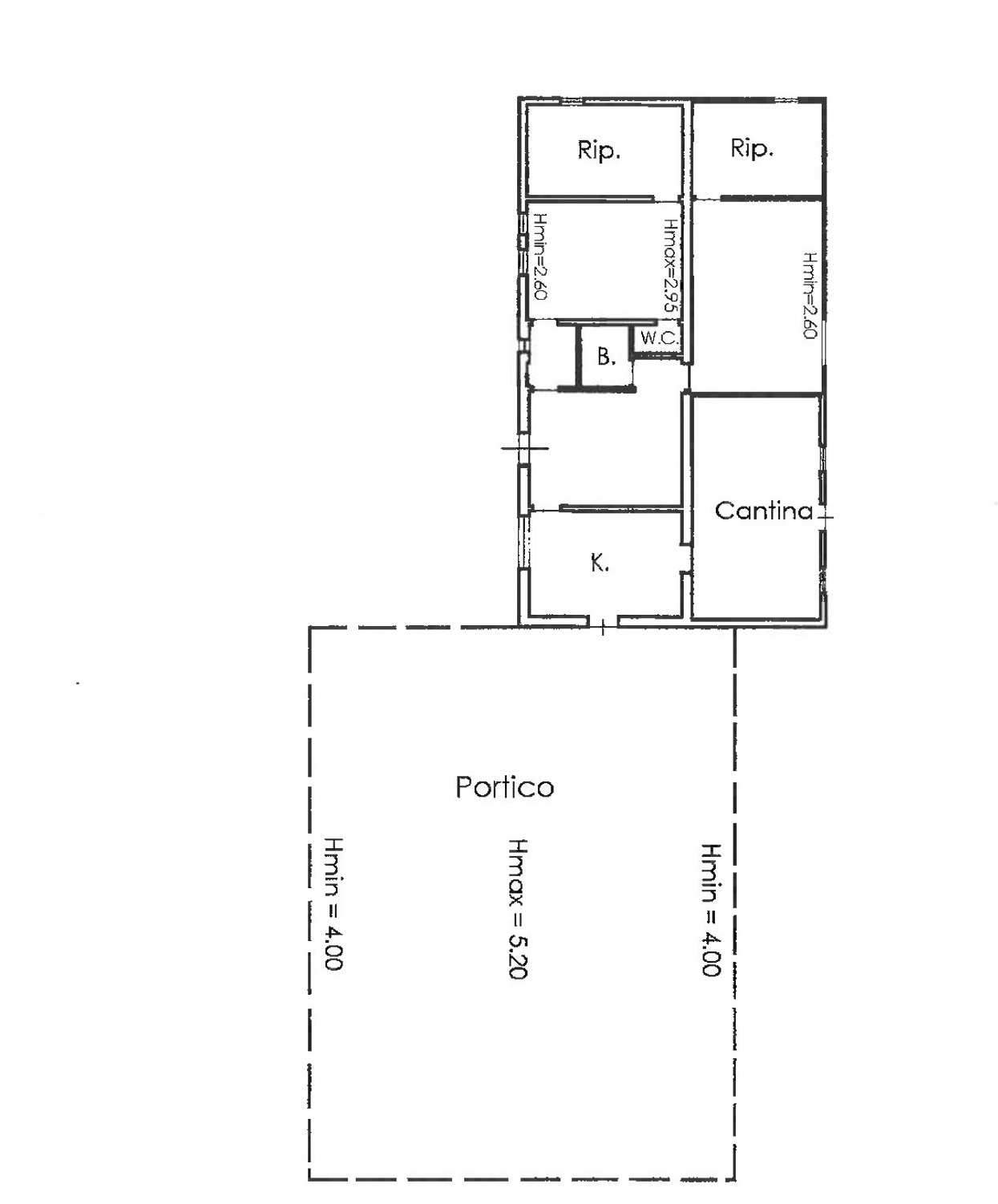
  • 162 mq
  • Vendesi

Roma , in località Giustiniana, Terreno con Fabbricato ad uso abitativo.
La struttura è in stato di abbandono completamente da ristrutturare, ma con ottime prospettive e potenzialità. Infatti la proprietà è raggiungibile agevolmente con strada asfaltata e rappresenta un buon investimento, ideale per realizzare un maneggio o altra attività connessa all'agricoltura, oltre che un'abitazione privata considerando che il fabbricato principale è accatastato come A/2. Esternamente è costruita in blocchi di cemento e la copertura di eternit.
L'interno si suddivide in diversi ambienti: attualmente i primi due ambienti con accesso esterno sono spogliatoi, gli altri risultano ad uso ufficio e ristoro.
Questo deriva dal fatto che l'ultima destinazione del fabbricato nel campo era ad uso sportivo.
Oltre a ciò è presente un portico antistante e una grande tettoia.
Il terreno si sviluppa per una superficie poco inferiore ai 5 ettari ed è completamente recintato con rete metallica.
All'interno del lotto sono presenti le utenze, quali acqua e luce. Nei pressi dei fabbricati sono inoltre presenti 4 torri faro. Agenzia Immobiliare Sarda è una società di intermediazione immobiliare regolarmente registrata con tutte le relative licenze ed autorizzazioni.
Tutto il materiale presentato è destinato esclusivamente a scopo informativo.
Sebbene questo materiale sia ritenuto corretto, può essere soggetto a errori, omissioni ovvero modifiche.
Tutte le informazioni sulla proprietà, inclusi, a titolo esemplificativo, metri quadrati, numero di camere, numero di camere da letto, zona e quartiere, nelle proprietà o informazioni mostrate devono essere verificate dal proprio avvocato, architetto, geometra o esperto di fiducia.
La visione delle unità immobiliari è soggetta a previa sottoscrizione del foglio di visita.
Tale dichiarazione è utile ai fini della conoscibilità dellimmobile grazie allagenzia immobiliare. Contatta l'inserzionista

Agenzia Immobiliare SardaAgenzia Immobiliare Sarda
Via F.lli Kennedy 14
07041, Alghero (Sassari)
Visualizza Telefono

INFORMAZIONI SULL'IMMOBILE

  • Riferimento: SAR506
  • Tipologia: Casa indipendente in Vendita
  • Locali: 6 Locali
  • Piano: Terra
  • Stato: da Ristrutturare
  • Prezzo: 189.000 €
  • Prezzo al mq: 1.167 €
  • Giardino: Privato
  • Modificato il: 20/11/2025
  • Scheda: SC9425510

Stabile

  • Anno: 1982
  • Piano: Terra
  • Classe Energetica: Immobile non soggetto a certificazione energetica

Mappa e indirizzo

Casa indipendente sito in via del fosso di monte oliviero 130
00135 Roma (Roma)
Labaro, Prima Porta, Valle Muricana
mappa mostra l'annuncio su mappa

Galleria Fotografica

Contatta l'inserzionista

Agenzia Immobiliare Sarda

Agenzia Immobiliare Sarda di Alghero propone in vendita questo immobile, contattali subito!

Annunci immobiliari a Roma (RM)

Copyright Š 2026 PCase.it. All rights reserved. Sede operativa MILANO. P.IVA 08508420968 - Condizioni d'uso e privacy