Preferiti

Sponsorizza

Stampa

Casa indipendente in vendita con giardino a San Sebastiano da Po

  • 125.000€
  • 130 mq
  • Vendesi

Per questo annuncio telefonare al 0119191552.
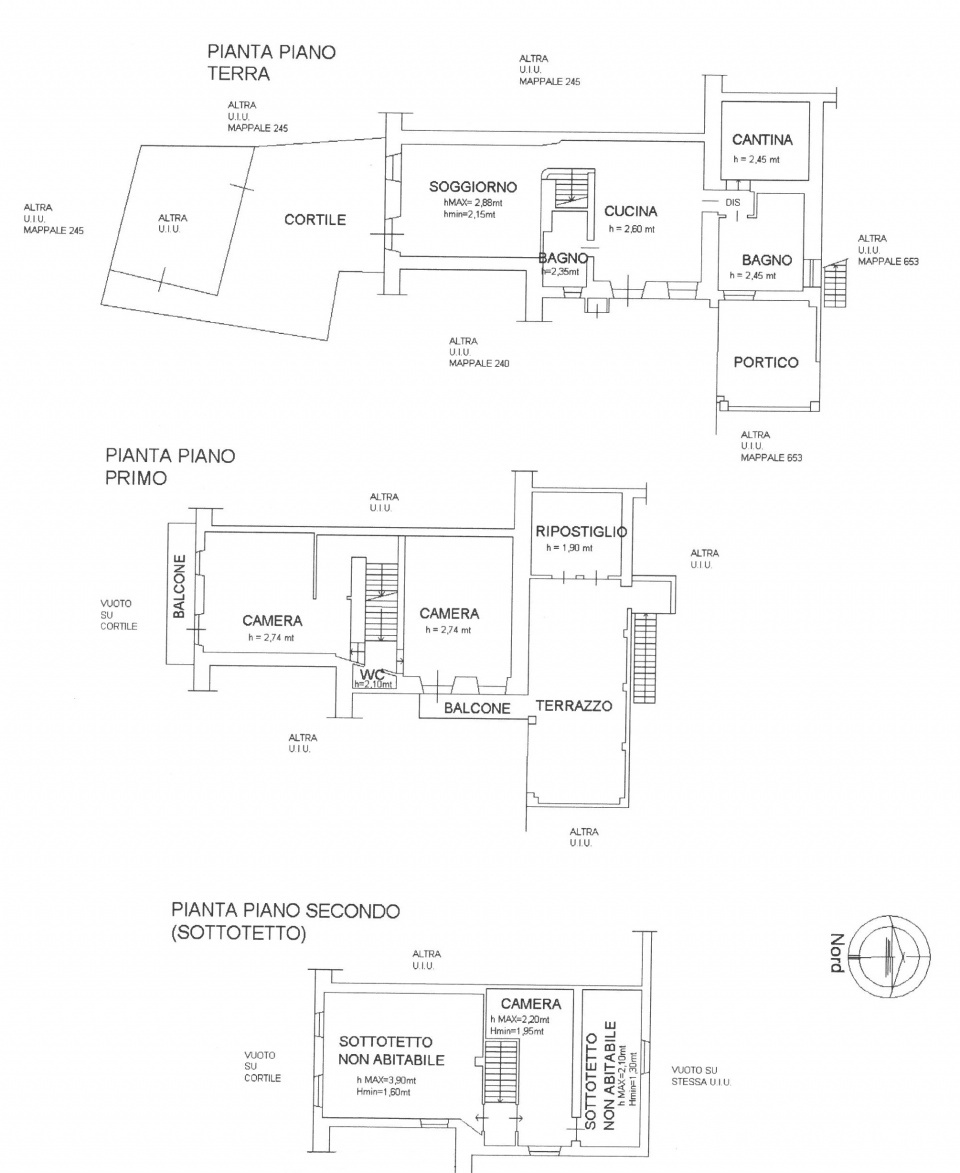
SAN SEBASTIANO DA PO. In zona tranquilla e soleggiata, proponiamo in vendita una graziosa casa indipendente su tre lati, sviluppata su tre livelli.
L'abitazione si distingue per la sua ampia metratura e la presenza di spazi ben distribuiti, che garantiscono comfort e funzionalità. L'ingresso si apre su un luminoso soggiorno con camino a legna, seguito da una cucina abitabile, ideale per la preparazione dei pasti in famiglia.
Al piano terra si trova anche un comodo bagno di servizio e una pratica lavanderia/cantina, che aggiunge ulteriore comodità alla gestione quotidiana della casa. Al primo piano si trovano due camere da letto, spaziose e ben illuminate, adatte a ospitare una famiglia.
A completare il piano un bagno di dimensioni contenute, perfetto come bagno di servizio per le camere.
L'ultimo piano ospita una terza camera grezza, ideale come studio, camera degli ospiti o stanza per i ragazzi, con accesso a una vista panoramica sulla zona circostante.
Completa l'immobile il balcone e l'ampio terrazzo di oltre 25 mq. La proprietà è arricchita da un cortile privato, perfetto per momenti di relax all'aperto o per un piccolo giardino.
Inoltre, un box auto al piano terra offre comodo parcheggio e spazio per lo stoccaggio.
Sul lato opposto della strada, è incluso un terreno di proprietà semi pianeggiante, che rappresenta un'ulteriore opportunità per chi desidera ampliare gli spazi esterni o realizzare un giardino.
Questa casa indipendente è la soluzione ideale per chi cerca indipendenza, tranquillità e una buona distribuzione degli spazi, con la possibilità di personalizzare gli ambienti a proprio gusto.
Per visionare tutte le foto collegarsi al sito cittacasa, riferimento A770. Agenzia di San Sebastiano da Po, Via Chivasso 5/a Contatta l'inserzionista

STUDIO SAN SEBASTIANO SNCSTUDIO SAN SEBASTIANO SNC
VIA CHIVASSO 73
10020, San Sebastiano da Po (Torino)
Visualizza Telefono

INFORMAZIONI SULL'IMMOBILE

  • Riferimento: A770
  • Tipologia: Casa indipendente in Vendita
  • Stato: Buono
  • Bagni: 3
  • Cucina: Abitabile
  • Prezzo: 125.000 €
  • Prezzo al mq: 962 €
  • Balconi: 1
  • Terrazzi: 1
  • Riscaldamento: Autonomo
  • Giardino: Privato
  • Cantina: Si
  • Modificato il: 05/03/2026
  • Scheda: SC9517519

Stabile

E

Mappa e indirizzo

10020 San Sebastiano da Po (Torino)
mappa mostra l'annuncio su mappa

Galleria Fotografica

Contatta l'inserzionista

STUDIO SAN SEBASTIANO SNC

STUDIO SAN SEBASTIANO SNC di San Sebastiano da Po propone in vendita questo immobile, contattali subito!

Annunci immobiliari a San Sebastiano da Po (TO)

Copyright Š 2026 PCase.it. All rights reserved. Sede operativa MILANO. P.IVA 08508420968 - Condizioni d'uso e privacy