Preferiti

Sponsorizza

Stampa

Casa indipendente in vendita con giardino a Ozzero

  • 149.000€
  • 2 locali
  • 120 mq
  • Vendesi

Questa Casa Indipendente ad uso Abitativo si trova nel comune di Ozzero, a soli pochi chilometri da Milano.
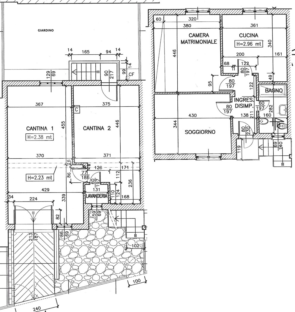
Con una superficie di 120 mq disposta su 2 livelli, questa propriet offre un'opportunit unica per creare la casa dei tuoi sogni.
La casa dispone attualmente di 2 locali e 1 bagno, ma con la possibilit di ristrutturare e riorganizzare gli spazi, possibile ricavare una zona giorno al piano seminterrato e 3 camere da letto con bagno al piano rialzato.
Il giardino privato offre spazio all'aperto ideali per godersi momenti di relax e socializzazione.
L'interno necessita di lavori di ristrutturazione, offrendo la possibilit di personalizzare gli ambienti secondo i propri gusti e esigenze.
La cucina abitabile e il soggiorno singolo sono ideali per creare un ambiente accogliente e funzionale.
Con un ingresso indipendente e una posizione tranquilla, questa Casa Indipendente rappresenta un'opportunit unica per chi desidera vivere in un ambiente riservato e immerso nella natura, pur rimanendo vicino ai servizi essenziali.
NO SPESE CONDOMINIALI.
Contattaci oggi per organizzare una visita e scoprire il potenziale di questa affascinante propriet.
CLASS.
ENERGETICA IN FASE DI RICHIESTA.
149.000,00. Per informazioni contattateci al nostro numero 02/9400013 oppure tramite mail: *******@*******, ci trovate anche su facebook: ***.*******.** Orari ufficio: da luned a venerd 09.00-12.30 e 15.00-19.30 - sabato 09.00-12.30 e 14.30-18.00. Le agenzie del Gruppo Grimaldi, presenti da anni sul territorio italiano, offrono servizi di intermediazione immobiliare e servizi tecnici legati al settore immobiliare con professionalit e affidabilit.
Grimaldi Immobiliare da oltre 30 anni un'azienda di qualit, un Gruppo di valore e di valori.
Tradizione e innovazione sono i valori fondamentali della visione di Grimaldi Immobiliare.
Con un marchio storico e riconosciuto, Grimaldi una societ sempre al passo con i tempi, capace di adeguarsi velocemente ai nuovi trend di mercato, grazie ad un organico con esperienza e qualificato.
I nostri responsabili sono a vostra completa disposizione per una valutazione gratuita e senza impegno del Vs. immobile.
Vi manca lAttestazione di prestazione energetica? saremo lieti di fissarle un appuntamento con il nostro Geometra e darle tutte le informazioni necessarie.
Offriamo un servizio Post Vendita che vi seguir in tutte le fase post-proposta fino alla firma della sottoscrizione del Rogito Notarile con la nostra presenza. Contatta l'inserzionista

GEMMA srlGEMMA srl
Corso Matteotti 53
, Abbiategrasso (Milano)
Visualizza Telefono

INFORMAZIONI SULL'IMMOBILE

  • Riferimento: 1579VRG
  • Tipologia: Casa indipendente in Vendita
  • Locali: 2 Locali ( 1 camera, cucina abitabile e un bagno)
  • Piano: Terra
  • Stato: da Ristrutturare
  • Prezzo: 149.000 €
  • Prezzo al mq: 1.242 €
  • Balconi: 1
  • Riscaldamento: Autonomo
  • Giardino: Privato
  • Spazio Auto: No
  • Cantina: Si
  • Modificato il: 20/03/2026
  • Scheda: SC9609772

Stabile

  • Anno: 1967
  • Piano: Terra
  • Portineria: No
I.P.E.
175Kwh/m2
G

Mappa e indirizzo

20080 Ozzero (Milano)
mappa mostra l'annuncio su mappa

Galleria Fotografica

Contatta l'inserzionista

GEMMA srl

GEMMA srl di Abbiategrasso propone in vendita questo immobile, contattali subito!

Annunci immobiliari a Ozzero (MI)

Copyright Š 2026 PCase.it. All rights reserved. Sede operativa MILANO. P.IVA 08508420968 - Condizioni d'uso e privacy