Preferiti

Sponsorizza

Stampa

Casa indipendente in vendita con giardino a Monselice

  • 485.000€
  • 9 locali
  • 234 mq
  • Vendesi

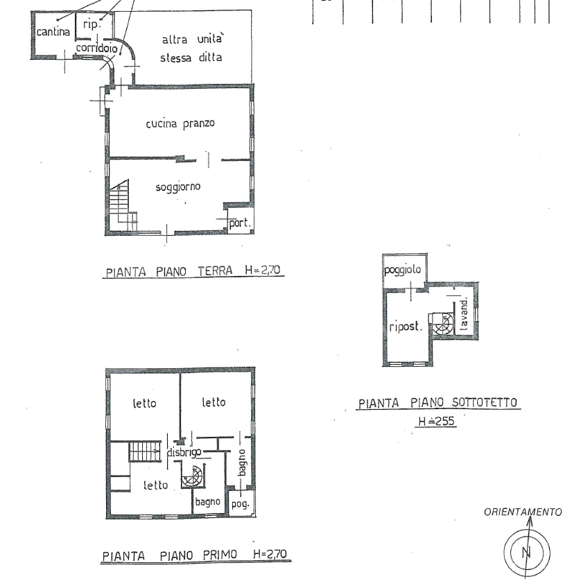
CASA SINGOLA CON GIARDINO A MONSELICE Si propone in vendita una casa singola con giardino in zona centrale a Monselice, comoda a tutti i servizi principali: centro storico, supermercati e autostrada.
Con una superficie di 234 mq, questa propriet si compone su 3 livelli.
Al piano terra si trova uno spazioso e luminoso soggiorno dotato di stufa centrale, una cucina open space con sala da pranzo provvista di camino molto grande ottimo per gli appassionati di cucina.
Sempre al piano terra presente la zona lavanderia, con bagno di servizio.
Al primo piano troviamo 3 camere da letto di cui 2 matrimoniali e una doppia.
La camera padronale dotata di bagno en suite e da un gradevole e intimo terrazzo.
Le altre due stanze sono servite da un ulteriore bagno al piano.
Al secondo piano si trova lo studio che pu essere adibito come quarta camera da letto, con relativo bagno e terrazzo con vista panoramica sulla Rocca.
Completano l'abitazione un garage doppio, e un bellissimo giardino con zona relax dove poter organizzare cene all'aperto con amici e parenti.
LA SOLUZIONE SI COMPONE: PIANO TERRA: - Soggiorno - Cucina Abitabile - Bagno - Lavanderia -Garage PRIMO PIANO: - 3 camere da letto - 2 bagni e disbrigo - Terrazzo SECONDO PIANO: -Studio -Bagno -Terrazzo PREZZO: 485.000,00 Certificazione Energetica A1 ZONA COINVOLTE: Padova, Monselice, Montagnana, Este, Solesino, Sant'Elena, Abano Terme, Montegrotto Terme, Battaglia Terme, Baone, Conselve.
GABETTI MONSELICE Via Cavallotti, 28 - 35043 Monselice T. +39 0429 1700 809 M. +39 345 035 3393 *******@******* ***.*******.** Contatta l'inserzionista

Vin.Co Immobiliare SrlsVin.Co Immobiliare Srls
Via Cavallotti 28
, Monselice (Padova)
Visualizza Telefono

INFORMAZIONI SULL'IMMOBILE

  • Riferimento: Cod. rif 3253024VRG
  • Tipologia: Casa indipendente in Vendita
  • Locali: 9 Locali
  • Piano: Terra
  • Stato: Buono
  • Bagni: 3
  • Cucina: Abitabile
  • Prezzo: 485.000 €
  • Prezzo al mq: 2.073 €
  • Balconi: 1
  • Riscaldamento: Autonomo
  • Giardino: Privato
  • Spazio Auto: Posto auto coperto
  • Modificato il: 24/04/2026
  • Scheda: SC9643433

Stabile

  • Anno: 1997
  • Piano: Terra
  • Portineria: No
I.P.E.
79,2Kwh/m2
A1

Mappa e indirizzo

35043 Monselice (Padova)
mappa mostra l'annuncio su mappa

Galleria Fotografica

Contatta l'inserzionista

Vin.Co Immobiliare Srls

Vin.Co Immobiliare Srls di Monselice propone in vendita questo immobile, contattali subito!

Annunci immobiliari a Monselice (PD)

Copyright Š 2026 PCase.it. All rights reserved. Sede operativa MILANO. P.IVA 08508420968 - Condizioni d'uso e privacy