Preferiti

Sponsorizza

Stampa

Casa indipendente in vendita con giardino a Empoli - santa maria a ripa

  • 199.000€
  • zona santa maria a ripa
  • 5 locali
  • 110 mq
  • Vendesi

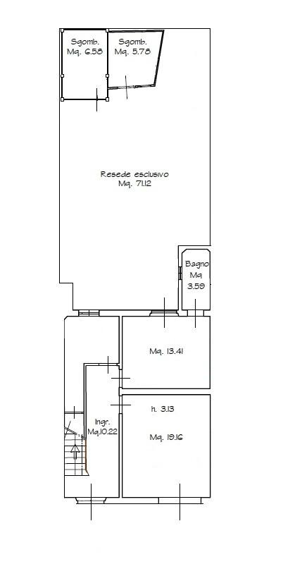
***.*******.** 603 - IN VENDITA A EMPOLI Località Santa Maria TERRATETTO DA RISTRUTTURARE - 5 vani con giardino Proponiamo in vendita un immobile situato a Santa Maria, in una zona residenziale interna molto tranquilla.
Il terratetto è disposto su due livelli ed è composta al piano terra da ingresso nel soggiorno, cucina, bagno e accesso al giardino tergale di circa 75 mq oltre a due locali di deposito; al piano primo ci sono due camere da letto matrimoniali, un balcone oltre ad uno studio/cameretta oltre al bagno 5 vani, distribuiti in modo funzionale 2/3 camere da letto; 2 bagni ABITAZIONE 100 MQ CANTINA - TAVERNA 12 MQ GIARDINO 74 MQ L'immobile è da ristrutturare.
Prezzo richiesto: ? 200.000 L'indirizzo riportato è indicativo e non corrisponde alla reale ubicazione dell'immobile.
Maggiori informazioni verranno fornite telefonicamente.
Etica Immobiliare di Riccardo Raugei Via Emilio Bardini, 48 Empoli (FI) Telefono e whatsapp Non una semplice agenzia immobiliare ma uno studio professionale che può supportarti in ogni fase della compravendita: Assistenza per mutui e pratiche finanziarie Supporto tecnico e burocratico Consulenza per ristrutturazioni e valorizzazione dellimmobile Collaborazione con professionisti qualificati del territorio ? Scopri il reale valore del tuo immobile con una valutazione professionale e senza impegno: Per maggiori informazioni o per richiedere una valutazione gratuita: 3289442245 Contatta l'inserzionista

Etica immobiliareEtica immobiliare
Via Bardini, 48
, Empoli (Firenze)
Visualizza Telefono

INFORMAZIONI SULL'IMMOBILE

  • Riferimento: 1334771/315/603
  • Tipologia: Terratetto in Vendita
  • Locali: 5 Locali
  • Stato: da Ristrutturare
  • Bagni: 2
  • Cucina: Abitabile
  • Prezzo: 199.000 €
  • Prezzo al mq: 1.809 €
  • Balconi: 1
  • Riscaldamento: Autonomo
  • Giardino: Privato - 75 Mq
  • Taverna: Si
  • Modificato il: 27/09/2025
  • Scheda: SC9456827

Stabile

  • Piani Totali: 2
  • Classe Energetica: n.d.

Mappa e indirizzo

50053 Empoli (Firenze), zona santa maria a ripa
mappa mostra l'annuncio su mappa

Galleria Fotografica

Contatta l'inserzionista

Etica immobiliare

Etica immobiliare di Empoli propone in vendita questo immobile, contattali subito!

Annunci simili

Annunci immobiliari a Empoli (FI)

Copyright Š 2026 PCase.it. All rights reserved. Sede operativa MILANO. P.IVA 08508420968 - Condizioni d'uso e privacy