Preferiti

Sponsorizza

Stampa

Casa indipendente in vendita con giardino a Cascina - san prospero navacchio

  • 230.000€
  • zona san prospero navacchio
  • 4 locali
  • 90 mq
  • Vendesi

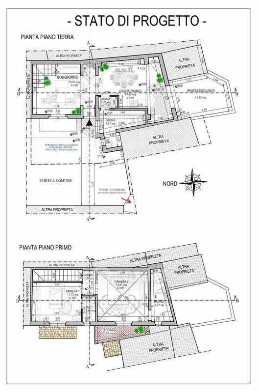
***.*******.** st01 - NUOVA RISTRUTTURAZIONE TERRATETTO CON GIARDINO E POSTI AUTO In corte tranquilla ,vicino a tutti i servizi , proponiamo terratetto finale libero su tre lati, attualmente in fase di completa ristrutturazione.
Limmobile si sviluppa su due livelli ed è così composto: al piano terra ingresso in luminoso soggiorno, cucina abitabile separata con accesso diretto alla resede privata, ideale per pranzi e cene allaperto, e bagno finestrato con doccia.
Al piano superiore troviamo la zona notte con due ampie camere matrimoniali, entrambe con bagno privato, perfette per garantire comfort e indipendenza.
Completano la proprietà: 2 posti auto giardino/orto privato di circa 200 mq (leggermente staccato), ideale per relax e animali domestici Ristrutturazione totale con tecnologie di nuova generazione, abitazione gas-free ad alta efficienza energetica.
Possibilità di personalizzare le finiture interne.
? Consegna prevista: fine luglio 2026 Classe energetica: B Soluzione ideale per chi cerca tranquillità, comfort moderno e spazi esterni vivibili! Contatta l'inserzionista

STELLA ImmobiliareSTELLA Immobiliare
Via Sant'Agostino, 28/B
, Pisa (Pisa)
Visualizza Telefono

INFORMAZIONI SULL'IMMOBILE

  • Riferimento: 1405621/171/st01
  • Tipologia: Terratetto in Vendita
  • Locali: 4 Locali (3 camere, cucina abitabile e 3 bagni)
  • Stato: Ristrutturato
  • Prezzo: 230.000 €
  • Prezzo al mq: 2.556 €
  • Balconi: 1
  • Riscaldamento: Autonomo
  • Giardino: Privato - 200 Mq
  • Modificato il: 27/05/2026
  • Scheda: SC9632976

Stabile

  • Piani Totali: 2
  • Classe Energetica: n.d.

Mappa e indirizzo

56021 Cascina (Pisa), zona san prospero navacchio
mappa mostra l'annuncio su mappa

Galleria Fotografica

Contatta l'inserzionista

STELLA Immobiliare

STELLA Immobiliare di Pisa propone in vendita questo immobile, contattali subito!

Annunci simili

Annunci immobiliari a Cascina (PI)

Copyright Š 2026 PCase.it. All rights reserved. Sede operativa MILANO. P.IVA 08508420968 - Condizioni d'uso e privacy