Preferiti

Sponsorizza

Stampa

Casa indipendente in vendita con giardino a Carrara - marina di

  • Prezzo ribassato -4%
  • € 410.000 390.000€
  • zona marina di
  • 5 locali
  • 220 mq
  • Vendesi

***.*******.** 5229 - CASA SINGOLA TERRA TETTO DA RISTRUTTURARE NEL CENTRO DI MARINA DI CARRARA RIF 286 In vendita esclusiva, proponiamo un terratetto tipico della parte storica di Marina, disposto su 2 livelli oltre un terzo livello costituito da una soffitta praticabile.
Situato nella zona detta "Marina Vecchia", in una strada ampia e comodissima ai servizi.
Questa spaziosa proprietà si estende su una superficie di 220 mq e si compone di 9 locali, offrendo ampie opportunità di personalizzazione e adattamento alle vostre esigenze.
Costruito nel 1963, l'immobile richiede di essere ristrutturato in modo importante ma offre l' opportunità di diverse soluzioni.
Attualmente si compone di un corpo principale costituito da 2 unità immobiliari, una al piano terra e l' altra al piano superiore.
L' ingresso delle due unità è comune.
Potrebbe diventare una unica dimora con zona giorno e zona notte oppure un investimento per creare diversi bilocali a scopo di reddito.
Attualmente il piano terra è costituito da 4 ampi vani, 2 bagni e ripostiglio, accesso al giardino; al piano primo 5 vani, balcone; soffitta accessibile da scala comoda.
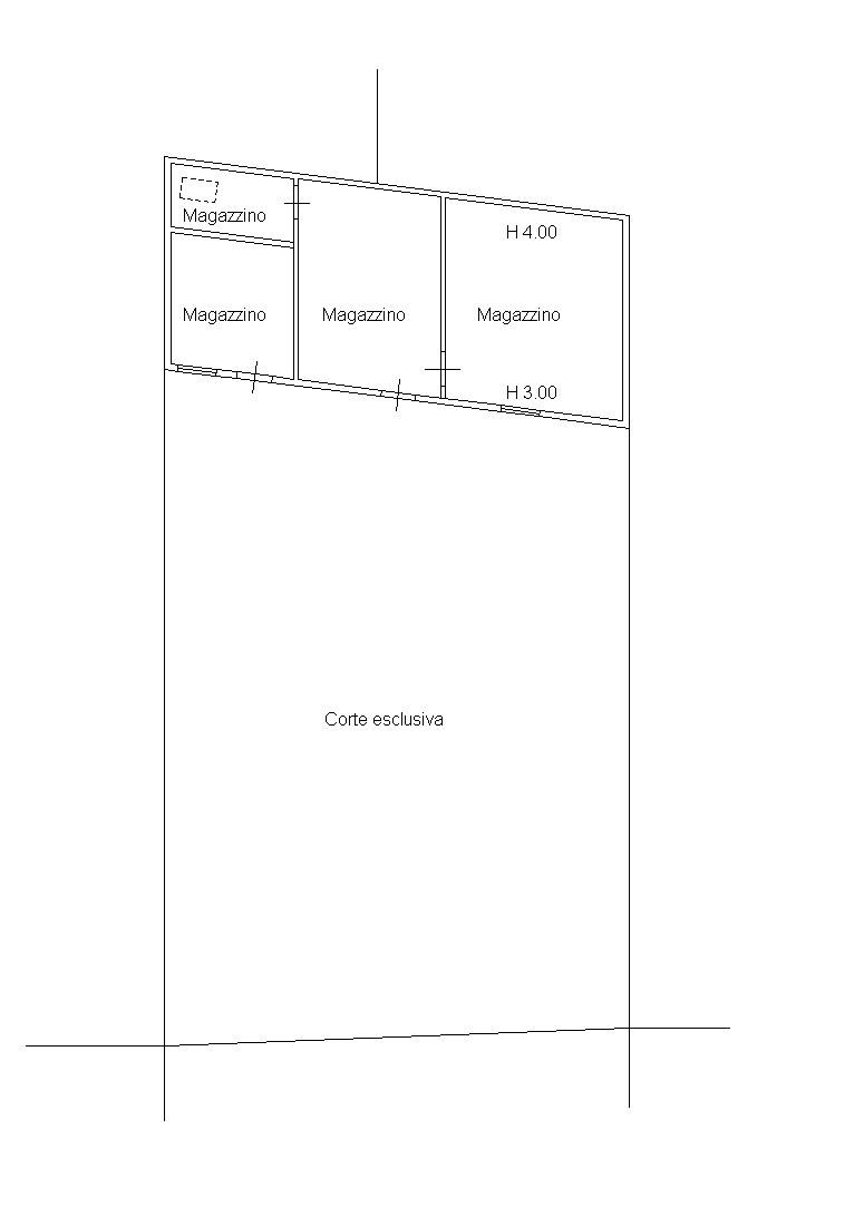
Il giardino sul retro di 180 mq ha sul lato opposto alla casa una costruzione di 45 mq suddivisa in varie stanze, destinata a magazzino catastalmente ma attrezzata e con scarichi e utenze per farne una dependance.
Non ci sono spese condominiali mensili.
Prezzo di vendita: 410.000 Euro. Zona particolarmente residenziale e piacevole Contatta l'inserzionista

CASANOVA IMMOBILIARECASANOVA IMMOBILIARE
Via Campo D'Appio, 33/B
, Carrara (Massa-Carrara)
Visualizza Telefono

INFORMAZIONI SULL'IMMOBILE

  • Riferimento: 1340955/1579/5229
  • Tipologia: Terratetto in Vendita
  • Locali: 5 Locali
  • Stato: da Ristrutturare
  • Bagni: 2
  • Cucina: Abitabile
  • Prezzo: 390.000 €
  • Prezzo al mq: 1.773 €
  • Balconi: 1
  • Terrazzi: 1 - 1 Mq
  • Riscaldamento: Autonomo
  • Giardino: Privato - 180 Mq
  • Soffitta: Si
  • Modificato il: 26/03/2026
  • Scheda: SC9500504

Stabile

  • Piani Totali: 2
  • Classe Energetica: n.d.

Mappa e indirizzo

54033 Carrara (Massa-Carrara), zona marina di
mappa mostra l'annuncio su mappa

Galleria Fotografica

Contatta l'inserzionista

CASANOVA IMMOBILIARE

CASANOVA IMMOBILIARE di Carrara propone in vendita questo immobile, contattali subito!

Annunci simili

Annunci immobiliari a Carrara (MS)

Copyright Š 2026 PCase.it. All rights reserved. Sede operativa MILANO. P.IVA 08508420968 - Condizioni d'uso e privacy