Preferiti

Sponsorizza

Stampa

Casa indipendente in vendita con giardino a Buti - cascine

  • 79.000€
  • zona cascine
  • 5 locali
  • 500 mq
  • Vendesi

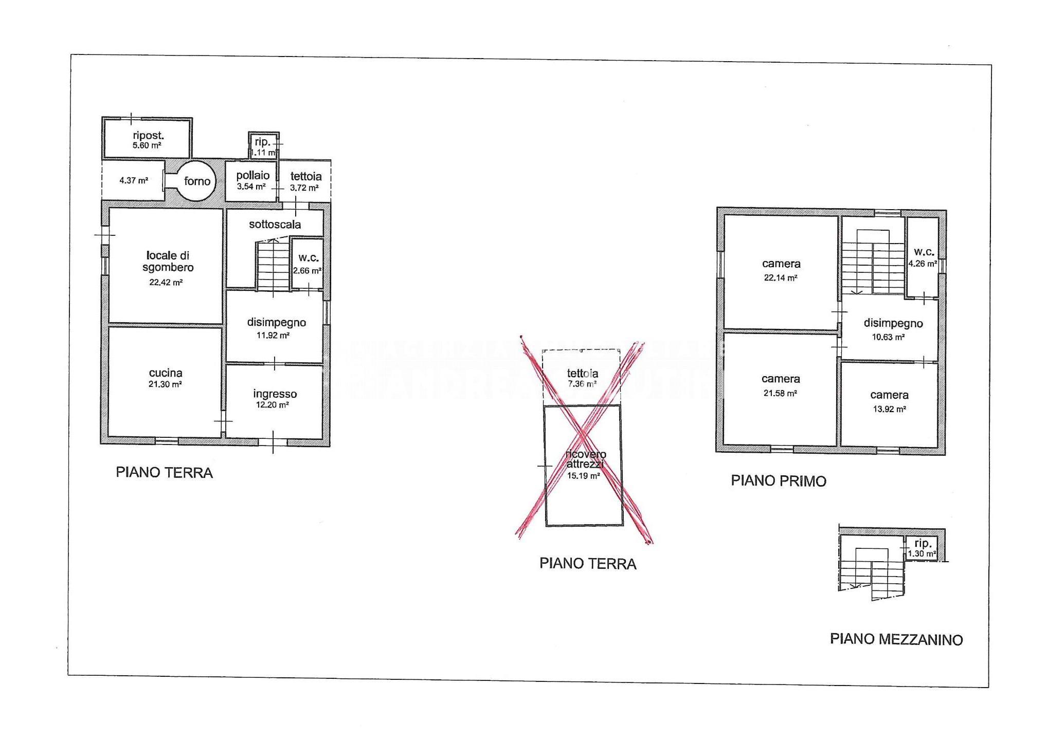
***.*******.** 1757-L - --NOSTRA ESCLUSIVA -- Nelle vicinanze del pittoresco borgo di BUTI, Vendesi CASA SINGOLA da demolire con 900 mq di GIARDINO sui quattro lati. Possibilità di edificare fino ad un massimo di mq 500. OTTIMO INVESTIMENTO, ideale realizzare una VILLA SINGOLA o un COMPLESSO RESIDENZIALE.
Situato in posizione COLLINARE, Immerso nella bellezza dei MONTI PISANI, il paese di BUTI, rappresenta la fuga perfetta per chi cerca la massima tranquillità, godendo al contempo dei comfort moderni.
Questo piccolo e riservato borgo storico dispone infatti di tutti i principali servizi quali Alimentari, Farmacia Banche poste ecc.. Zona strategica , VICINA A TUTTI I SERVIZI e a due passi dal centro del paese.
Immobile ideale per chi cerca la massima tranquillità ma non vuole rinunciare ai comfort in una delle aree più autentiche della Toscana.
Buti è situato sulle pendici orientali del Monte Pisano, immerso nella pace di boschi di pini e di castagni.
Il paese è famoso per la produzione del famoso olio doliva e per il famigerato Palio delle contrade che si svolge ogni anno nel mese di Gennaio.
Inoltre il paese ospita innumerevoli eventi culturali e gastronomici durante tutto lanno.
Posizione centrale strategica per raggiungere le principali città della Toscana: in soli 30 minuti si raggiungono Pisa (dove è presente l'aereoporto) e Lucca famosa per le sue bellisime mura , inoltre in un' ora e mezzo si raggiungono tranquillamente Firenze e Siena.
Classe energetica: G - Rif. 1757-L Contatta l'inserzionista

SALUTINI ANDREA Agenzia ImmobiliareSALUTINI ANDREA Agenzia Immobiliare
Via Pacinotti, 11
, Pontedera (Pisa)
Visualizza Telefono

INFORMAZIONI SULL'IMMOBILE

  • Riferimento: 1238293/1361/1757-L
  • Tipologia: Casa singola in Vendita
  • Locali: 5 Locali
  • Piano: Terra
  • Stato: da Ristrutturare
  • Bagni: 2
  • Cucina: Abitabile
  • Prezzo: 79.000 €
  • Prezzo al mq: 158 €
  • Riscaldamento: Autonomo
  • Giardino: Privato - 900 Mq
  • Modificato il: 26/01/2026
  • Scheda: SC9028325

Stabile

  • Piano: Terra
  • Classe Energetica: n.d.

Mappa e indirizzo

56032 Buti (Pisa), zona cascine
mappa mostra l'annuncio su mappa

Galleria Fotografica

Contatta l'inserzionista

SALUTINI ANDREA Agenzia Immobiliare

SALUTINI ANDREA Agenzia Immobiliare di Pontedera propone in vendita questo immobile, contattali subito!

Annunci immobiliari a Buti (PI)

Copyright Š 2026 PCase.it. All rights reserved. Sede operativa MILANO. P.IVA 08508420968 - Condizioni d'uso e privacy