Preferiti

Sponsorizza

Stampa

Casa indipendente in vendita con giardino a Asolo

  • 190.000€
  • 4 locali
  • 196 mq
  • Vendesi

RIF. BL072 VENDESI casa singola con ampio giardino di proprietà, in una frazione di Asolo, vicina ai principali servizi.
L'immobile, del 1978, è abitabile fin da subito e si sviluppa su due piani fuori terra, Al primo piano troviamo la zona giorno, dove è possibile mettere una stufa a pellet.
La zona living, presenta un ingresso, soggiorno e cucina separati, tre camere di ampie metrature, un bagno ed una bella terrazza.
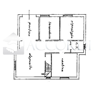
Scendendo al piano troviamo un portico e ampio garage, taverna, cantina e lavanderia/ripostiglio.
Nell'ampio giardino di circa 800 mq, si possono trascorrere dei bei momenti di relax Si intende precisare che gli indirizzi presenti negli annunci non sono identificativi dell'ubicazione precisa dell'immobile, danno un riferimento solo generico della zona al cliente che ricerca, al fine di tutelare la privacy e riservatezza del venditore.
Per visionare l'immobile o per ricevere ulteriori informazioni contattateci: 0423 1904721.
- Le nostre sedi : Montebelluna (TV) - Maser (TV) - Conegliano (TV) - Jesolo (VE). Contatta l'inserzionista

ACCORDI IMMOBILIARIACCORDI IMMOBILIARI
Via GUIDO BERGAMO 25
31044, Montebelluna (Treviso)
Visualizza Telefono

INFORMAZIONI SULL'IMMOBILE

  • Riferimento: BL072S
  • Tipologia: Casa indipendente in Vendita
  • Locali: 4 Locali (3 camere, cucina abitabile con doppi servizi)
  • Prezzo: 190.000 €
  • Prezzo al mq: 969 €
  • Terrazzi: 1
  • Riscaldamento: Autonomo
  • Giardino: Privato - 800 Mq
  • Spazio Auto: Box doppio in larghezza
  • Cantina: Si
  • Modificato il: 19/03/2026
  • Scheda: SC9474569

Stabile

  • Piani Totali: 2
G

Mappa e indirizzo

31011 Asolo (Treviso)
mappa mostra l'annuncio su mappa

Galleria Fotografica

Contatta l'inserzionista

ACCORDI IMMOBILIARI

ACCORDI IMMOBILIARI di Montebelluna propone in vendita questo immobile, contattali subito!

Annunci immobiliari a Asolo (TV)

Copyright Š 2026 PCase.it. All rights reserved. Sede operativa MILANO. P.IVA 08508420968 - Condizioni d'uso e privacy