Preferiti

Sponsorizza

Stampa

Casa indipendente in vendita con giardino a Asciano

  • 180.000€
  • 3 locali
  • 71 mq
  • Vendesi

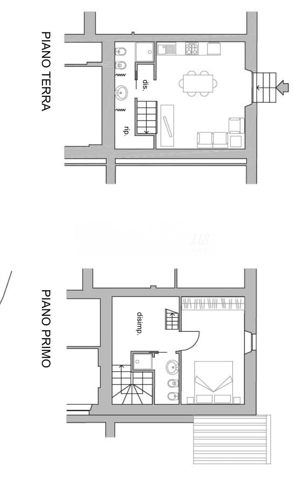
***.*******.** v740 - Siena Nella parte sud in posizione panoramica in cima ad un poggetto , con vista panoramica nella campagna, porzioni di casolare di varie metrature in vendita completamente ristrutturate Questa porzione ha una metratura di circa 71 mq piu' locali accessori di 21 mq. L'immobile ha entrata indipendente da ampio giardino privato.
Due posti auto privati.
Si sviluppa su due piani ed e' composta a piano terra da grande soggiorno, cucina , bagno.
Primo piano camera piu' bagno.
Piano secondo ampia mansarda.
Richiesta 180000 Contatta l'inserzionista

TOSCANA DOMUS ImmobiliareTOSCANA DOMUS Immobiliare
Viale Cavour, 94
, Siena (Siena)
Visualizza Telefono

INFORMAZIONI SULL'IMMOBILE

  • Riferimento: 1084866/1170/v740
  • Tipologia: Porzione di casa in Vendita
  • Locali: 3 Locali (2 camere, cucina abitabile con doppi servizi)
  • Piano: Terra
  • Stato: Ristrutturato
  • Prezzo: 180.000 €
  • Prezzo al mq: 2.535 €
  • Riscaldamento: Autonomo
  • Giardino: Privato - 46 Mq
  • Mansarda: Si
  • Modificato il: 11/03/2026
  • Scheda: SC9608488

Stabile

  • Piano: Terra su 2 totali
  • Classe Energetica: n.d.

Mappa e indirizzo

53041 Asciano (Siena)
mappa mostra l'annuncio su mappa

Galleria Fotografica

Contatta l'inserzionista

TOSCANA DOMUS Immobiliare

TOSCANA DOMUS Immobiliare di Siena propone in vendita questo immobile, contattali subito!

Annunci immobiliari a Asciano (SI)

Copyright Š 2026 PCase.it. All rights reserved. Sede operativa MILANO. P.IVA 08508420968 - Condizioni d'uso e privacy