Preferiti

Sponsorizza

Stampa

Casa indipendente in vendita con giardino a Arezzo

  • 90.000€
  • 65 mq
  • Vendesi

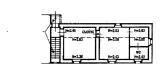
loc. gragnone in posizione panoramica proponiamo in vendita porzione di casa in pietra completamente da ristrutturare . l'immobile e' composto da ingresso da scale condominiali,ingresso su cucina/pranzo/soggiorno , camera matrimoniale,bagno e stanza pluriuso per un totale di 65mq. a piano terra troviamo tre locali cantina ,e un locale deposito di 28mq. completano la proprieta' vari appezzamenti di terreno e oliveta per un totale di ettari 1,7. rif. g 10 90.000 Contatta l'inserzionista

TUSCANY HOUSETUSCANY HOUSE
VIA GUIDO MONACO 41/b AREZZO
52100, Arezzo (Arezzo)
Visualizza Telefono

INFORMAZIONI SULL'IMMOBILE

  • Riferimento: G10
  • Tipologia: Casa indipendente in Vendita
  • Piano: Primo
  • Stato: da Ristrutturare
  • Bagni: 1
  • Cucina: Abitabile
  • Prezzo: 90.000 €
  • Prezzo al mq: 1.385 €
  • Giardino: Privato
  • Spazio Auto: No
  • Cantina: Si
  • Modificato il: 03/04/2026
  • Scheda: SC9508496

Stabile

  • Piano: 1
  • Classe Energetica: n.d.

Mappa e indirizzo

52100 Arezzo (Arezzo)
Agazzi, Santa Firmina, Tortaia
mappa mostra l'annuncio su mappa

Galleria Fotografica

Contatta l'inserzionista

TUSCANY HOUSE

TUSCANY HOUSE di Arezzo propone in vendita questo immobile, contattali subito!

Annunci immobiliari a Arezzo (AR)

Copyright Š 2026 PCase.it. All rights reserved. Sede operativa MILANO. P.IVA 08508420968 - Condizioni d'uso e privacy