Preferiti

Sponsorizza

Stampa

Capannone in vendita con posto auto coperto a Correzzola

  • 70.000€
  • 2 locali
  • 205 mq
  • Vendesi

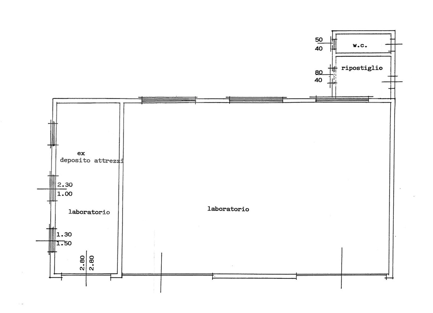
CORREZZOLA, frazione Villa del Bosco, a 500mt dal centro proponiamo in vendita un capannone artigianale di 200mq, completo di ufficio, ed uno scoperto di pertinenza di oltre 5.000mq.
La soluzione ideale per chi ha unattivit o necessita di ampio magazzino.
Possibilit di acquistare anche l'abitazione adiacente Contatta l'inserzionista

PI.CO. sas di Trolese Giorgio & C.PI.CO. sas di Trolese Giorgio & C.
Piazza Jappelli 1
, Piove di Sacco (Padova)
Visualizza Telefono

INFORMAZIONI SULL'IMMOBILE

  • Riferimento: 0630262922-CVCG
  • Tipologia: Capannone Industriale in Vendita
  • Locali: 2 Locali ( 1 camera e un bagno)
  • Piano: Terra
  • Prezzo: 70.000 €
  • Prezzo al mq: 341 €
  • Spazio Auto: Posto auto coperto
  • Modificato il: 17/04/2026
  • Scheda: SC9639260

Stabile

  • Anno: 1977
  • Piano: Terra su 1 totali
  • Classe Energetica: n.d.

Mappa e indirizzo

35020 Correzzola (Padova)
mappa mostra l'annuncio su mappa

Galleria Fotografica

Contatta l'inserzionista

PI.CO. sas di Trolese Giorgio & C.

PI.CO. sas di Trolese Giorgio & C. di Piove di Sacco propone in vendita questo immobile, contattali subito!

Annunci immobiliari a Correzzola (PD)

Copyright Š 2026 PCase.it. All rights reserved. Sede operativa MILANO. P.IVA 08508420968 - Condizioni d'uso e privacy