Preferiti

Sponsorizza

Stampa

Capannone in vendita a Campobasso

  • 250.000€
  • 220 mq
  • Vendesi

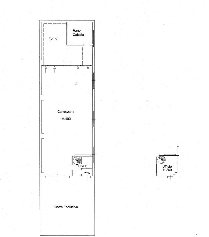
In zona commerciale proponiamo ampio locale di 220 mq con comodo piazzale antistante di circa 200 mq. Internamente vi un ambiente unico libero dalla presenza di pilastri, due piccoli uffici di cui uno soppalcato e il bagno.
Il piazzale esterno pu essere utilizzato come deposito oppure come spazio di manovra/parcheggio.
Seguiteci anche su FACEBOOK e INSTAGRAM! Cercate "GABETTI CAMPOBASSO" per essere sempre aggiornati sui nostri immobili. Contatta l'inserzionista

Monforte Real Estate SrlMonforte Real Estate Srl
Via Cavour 27
, Campobasso (Campobasso)
Visualizza Telefono

INFORMAZIONI SULL'IMMOBILE

  • Riferimento: Cod. rif 3139209VCG
  • Tipologia: Capannone Industriale in Vendita
  • Piano: Terra
  • Prezzo: 250.000 €
  • Prezzo al mq: 1.136 €
  • Spazio Auto: No
  • Modificato il: 23/02/2026
  • Scheda: SC9079726

Stabile

  • Anno: 1990
  • Piano: Terra
I.P.E.
227,98Kwh/m2
G

Mappa e indirizzo

86100 Campobasso (Campobasso)
mappa mostra l'annuncio su mappa

Galleria Fotografica

Contatta l'inserzionista

Monforte Real Estate Srl

Monforte Real Estate Srl di Campobasso propone in vendita questo immobile, contattali subito!

Annunci immobiliari a Campobasso (CB)

Copyright Š 2026 PCase.it. All rights reserved. Sede operativa MILANO. P.IVA 08508420968 - Condizioni d'uso e privacy