Preferiti

Sponsorizza

Stampa

Capannone in vendita a Campi Bisenzio - la villa

  • Prezzo ribassato
  • € 140.000 1.400.000€
  • zona la villa
  • 1200 mq
  • Vendesi

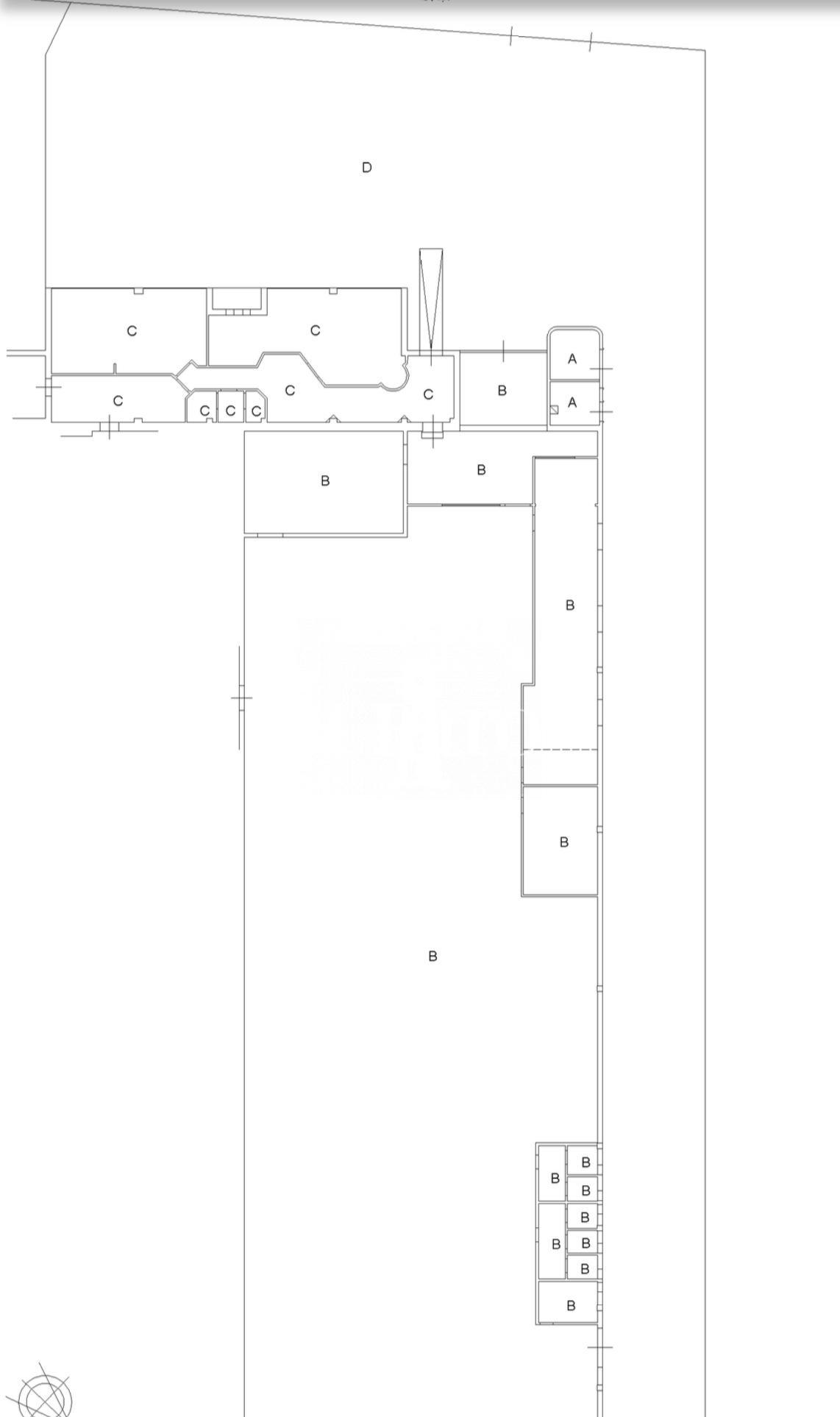
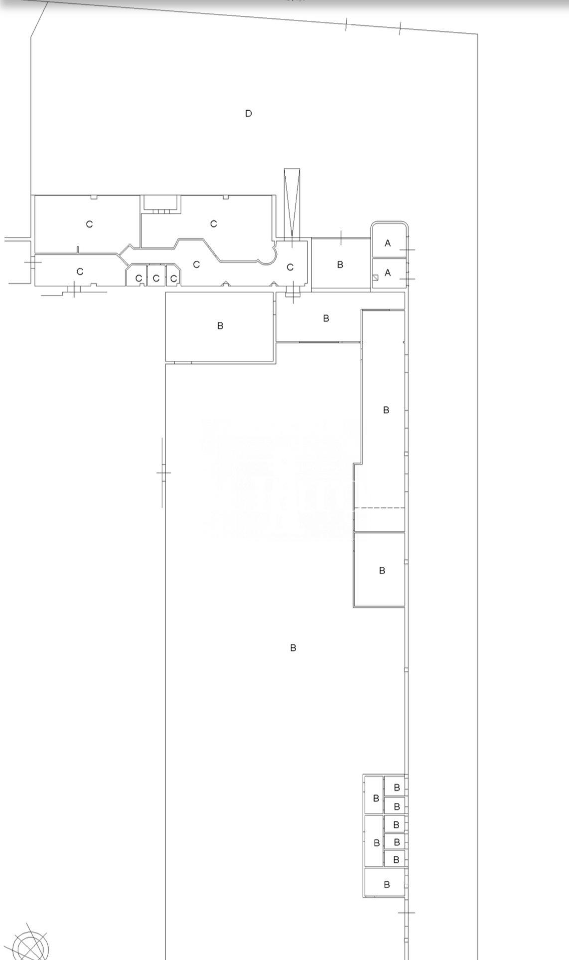
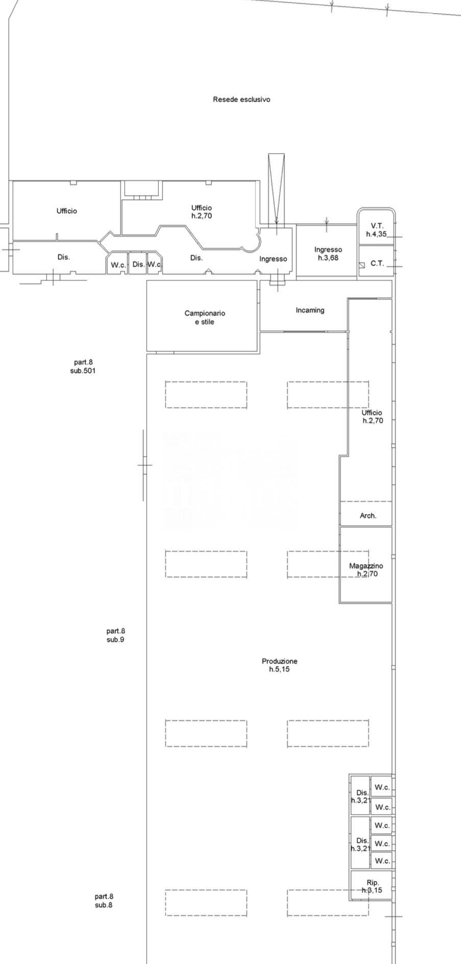
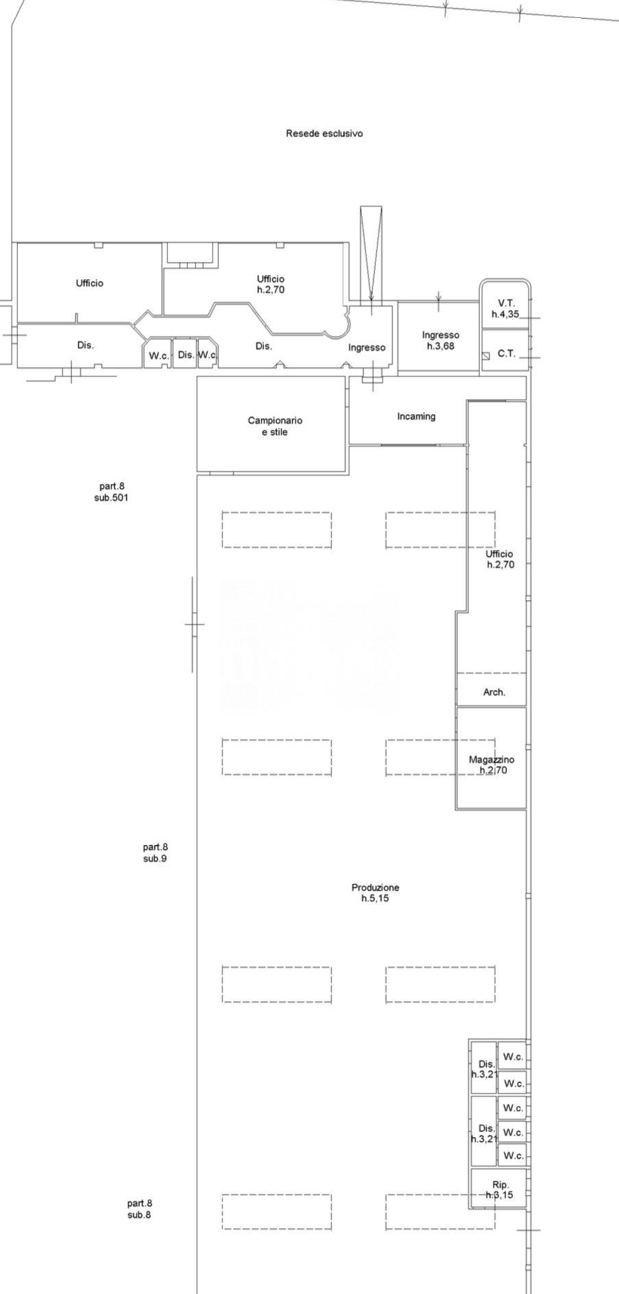
***.*******.** C001 - Campi Bisenzio: In zona industriale proponiamo in vendita CAPANNONE ARTIGIANALE di circa 1200 mq con piazzale esclusivo carrabile.
L'immobile ha una estensione di circa 1000 mq dedicati solo al produttivo mentre la restante metratura è distribuita tra tre uffici con aria condizionata e riscaldamento, show room, 5 bagni con antibagno uscite di sicurezza e antincendio.
LIBERO VELOCEMENTE! Classe energetica: In attesa di certificazione - Rif. C001 Contatta l'inserzionista

IL FARO ImmobiliareIL FARO Immobiliare
Via Rucellai, 20
, Campi Bisenzio (Firenze)
Visualizza Telefono

INFORMAZIONI SULL'IMMOBILE

  • Riferimento: 1336235/2112/C001
  • Tipologia: Capannone artigianale in Vendita
  • Stato: Ottimo
  • Bagni: 1
  • Prezzo: 1.400.000 €
  • Prezzo al mq: 1.167 €
  • Modificato il: 12/12/2025
  • Scheda: SC9479722

Stabile

  • Classe Energetica: n.d.

Mappa e indirizzo

50013 Campi Bisenzio (Firenze), zona la villa
mappa mostra l'annuncio su mappa

Galleria Fotografica

Contatta l'inserzionista

IL FARO Immobiliare

IL FARO Immobiliare di Campi Bisenzio propone in vendita questo immobile, contattali subito!

Annunci immobiliari a Campi Bisenzio (FI)

Copyright Š 2026 PCase.it. All rights reserved. Sede operativa MILANO. P.IVA 08508420968 - Condizioni d'uso e privacy