Preferiti

Sponsorizza

Stampa

Capannone in vendita ristrutturato a San Giorgio di Piano in via oradour 1

  • 540.000€
  • 3 locali
  • 600 mq
  • Vendesi

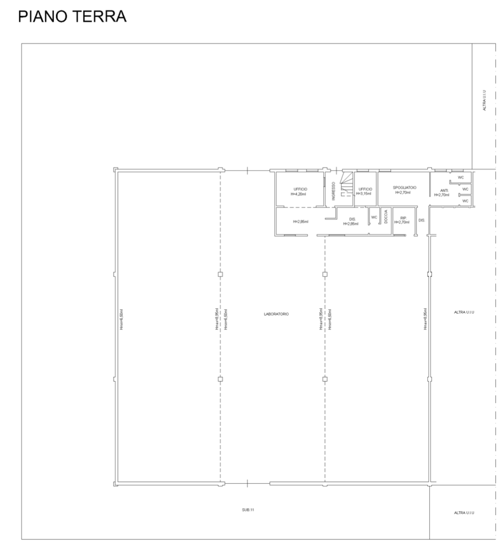
San Giorgio di Piano Località Stiatico Capannone 600 mq con area esterna 1180 mq Proponiamo in vendita un capannone industriale di 600 mq complessivi, attualmente in fase di ristrutturazione completa, con area esterna esclusiva di 1180 mq. L'immobile presenta caratteristiche al di fuori dello standard, infatti le altezze interne partono da 6,5 metri arrivando fino a circa 9 metri massimi, tetto completamente rifatto e coibentato, cappotto termico di ampio spessore, servizi igienici nuovi ed uffici realizzati secondo le esigenze dell'acquirente, impianti nuovi ed autonomi.
Gli spazi interni possono essere personalizzati in base alle esigenze dellattività, con possibilità impianti su misura, questa soluzione si adatta per aziende di logistica, magazzino, laboratorio, produzione o attività artigianali.
La posizione è strategica, comoda ai caselli autostradali di Interporto ed Altedo sulla A13, a breve distanza da Interporto e ben collegata ai principali assi stradali.
Prezzo 540.000 ? Rif 1700-C Contatta l'inserzionista

Punto 1 S.r.lPunto 1 S.r.l
Via Matteotti 122
40018, San Pietro in Casale (Bologna)
Visualizza Telefono

INFORMAZIONI SULL'IMMOBILE

  • Riferimento: 1700-C
  • Tipologia: Capannone in Vendita
  • Locali: 3 Locali (2 camere e 5 bagni)
  • Piano: Terra
  • Stato: Ristrutturato
  • Prezzo: 540.000 €
  • Prezzo al mq: 900 €
  • Modificato il: 10/03/2026
  • Scheda: SC9616227

Stabile

  • Piano: Terra
  • Classe Energetica: n.d.

Mappa e indirizzo

Capannone sito in via oradour 1
40016 San Giorgio di Piano (Bologna)
mappa mostra l'annuncio su mappa

Galleria Fotografica

Contatta l'inserzionista

Punto 1 S.r.l

Punto 1 S.r.l di San Pietro in Casale propone in vendita questo immobile, contattali subito!

Annunci immobiliari a San Giorgio di Piano (BO)

Copyright Š 2026 PCase.it. All rights reserved. Sede operativa MILANO. P.IVA 08508420968 - Condizioni d'uso e privacy