Preferiti

Sponsorizza

Stampa

Capannone in vendita con terrazzo a Genova in via alla chiesa di san giorgio di bavari 11 r

  • 90.000€
  • 5 locali
  • 570 mq
  • Vendesi

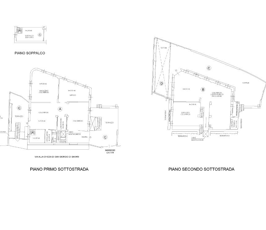
Opificio su due livelli con area esterna e con annesso locale al piano terra in cui sono collocati i contatori dell'Enel, locale posto sopra l'ultimo piano dell'edificio in cui sono collocati i recipienti dell'acqua e locale esterno adibito a centrale termica.
Diritto di superficie su lastrico solare della superficie complessiva di 209 mq:utilizzabile per la porzione di circa 170 mq per l'installazione di un impianto fotovoltaico.
- Il Prezzo visualizzato è la Base d'Asta in quanto limmobile è oggetto di esecuzione immobiliare venduto tramite Asta Giudiziaria.
- L'immobile aggiudicato, viene venduto libero e sgombro da persone cose ed ipoteche nello stato di fatto e di diritto in cui si trova.
- Non rappresentiamo il Tribunale, ma lavoriamo nell'esclusivo interesse del potenziale acquirente per garantire un acquisto sicuro.
- I consulenti di ASTE ITALIA ti assisteranno in tutte le attività dell'iter giudiziario dalla visita dell'immobile fino alla consegna chiavi.
- Contatta il nostro Servizio Clienti , i nostri operatori sono a disposizione per chiarire i molteplici dubbi per partecipare alle ASTE. Contatta l'inserzionista

DOMY ONLINE S.R.L.DOMY ONLINE S.R.L.
Via San Lorenzo 5 Int. 41
16123, Genova (Genova)
Visualizza Telefono

INFORMAZIONI SULL'IMMOBILE

  • Riferimento: GE113/24LU-1103-26-1
  • Tipologia: Capannone in Vendita
  • Locali: 5 Locali
  • Piano: Interrato
  • Stato: da Ristrutturare
  • Bagni: 2
  • Prezzo: 90.000 €
  • Prezzo al mq: 158 €
  • Terrazzi: 2 - 102 Mq
  • Modificato il: 12/03/2026
  • Scheda: SC9580952

Stabile

  • Piano: Interrato
G

Mappa e indirizzo

Capannone sito in via alla chiesa di san giorgio di bavari 11 r
16159 Genova (Genova)
Apparizione, San Desiderio, Bavari
mappa mostra l'annuncio su mappa

Galleria Fotografica

Contatta l'inserzionista

DOMY ONLINE S.R.L.

DOMY ONLINE S.R.L. di Genova propone in vendita questo immobile, contattali subito!

Annunci immobiliari a Genova (GE)

Copyright Š 2026 PCase.it. All rights reserved. Sede operativa MILANO. P.IVA 08508420968 - Condizioni d'uso e privacy