Preferiti

Sponsorizza

Stampa

Capannone in affitto classe A4 a San Polo di Piave

  • 19.000€
  • 5500 mq
  • Affittasi

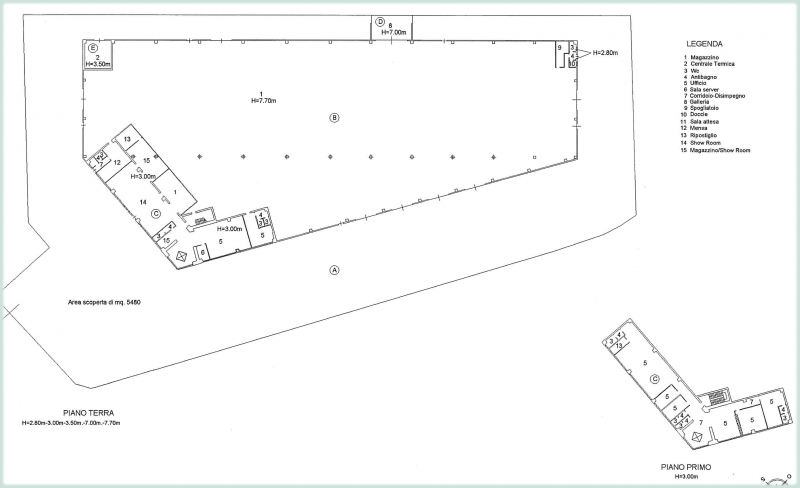
NOSTRO RIF. CP-198L Nelle immediate vicinanze di San Polo di Piave proponiamo in locazione capannone industriale di complessivi 5.500 mq, con altezza interna di 7,70 m e area scoperta esclusiva di pari metratura (5.500 mq). Limmobile, edificato intorno al 2010, si presenta in ottime condizioni e con finiture moderne.
La superficie destinata a lavorazione/deposito, pari a circa 4.500 mq, è dotata di: Riscaldamento a pavimento Predisposizione per carroponte Anello antincendio 4 baie di carico 8 portoni di accesso La zona uffici, di circa 1.000 mq, è di rappresentanza, disposta su due livelli e servita da ascensore.
Disponibile da settembre 2026 Canone di locazione: ? 19.000/mese Per maggiori informazioni o per fissare una visita, contattaci.
APE in fase di definizione Contatta l'inserzionista

Gambaro Intermediazioni CommercialiGambaro Intermediazioni Commerciali
Via Gaspare Gozzi)
30172, Venezia (Venezia)
Visualizza Telefono

INFORMAZIONI SULL'IMMOBILE

  • Riferimento: CP-198L
  • Tipologia: Capannone in Affitto
  • Prezzo: 19.000 €
  • Prezzo al mq: 3 €
  • Modificato il: 19/03/2026
  • Scheda: SC9600103

Stabile

  • Portineria: No
A4

Galleria Fotografica

Contatta l'inserzionista

Gambaro Intermediazioni Commerciali

Gambaro Intermediazioni Commerciali di Venezia propone in affitto questo immobile, contattali subito!

Annunci immobiliari a San Polo di Piave (TV)

Copyright Š 2026 PCase.it. All rights reserved. Sede operativa MILANO. P.IVA 08508420968 - Condizioni d'uso e privacy