Preferiti

Sponsorizza

Stampa

Capannone in vendita classe A4 a San Polo di Piave

  • trattativa riservata
  • 5500 mq
  • Vendesi

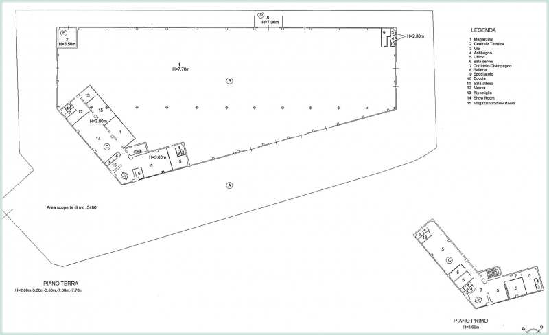
NOSTRO RIF. CP-198 Nelle vicinanze di San Polo di Piave, proponiamo in vendita capannone industriale di complessivi 5.500 mq, con altezza interna di 7,70 m e area scoperta esclusiva di pari metratura (5.500 mq). Limmobile, edificato intorno al 2010, si presenta con finiture moderne.
La superficie destinata a lavorazione/deposito è di circa 4.500 mq, dotata di: riscaldamento a pavimento predisposizione per carroponte anello antincendio 4 baie di carico 8 portoni Gli uffici, per circa 1.000 mq, sono di prestigio, disposti su due livelli e serviti da ascensore.
Libero da settembre 2026. Prezzo riservato.
Per maggiori informazioni o per fissare una visita, contattaci.
APE in fase di defizione ATTENZIONE LE IMMAGINI E LA POSIZIONE SONO PURAMENTE INDICATIVE Contatta l'inserzionista

Gambaro Intermediazioni CommercialiGambaro Intermediazioni Commerciali
Via Gaspare Gozzi)
30172, Venezia (Venezia)
Visualizza Telefono

INFORMAZIONI SULL'IMMOBILE

  • Riferimento: CP-198
  • Tipologia: Capannone in Vendita
  • Modificato il: 19/03/2026
  • Scheda: SC9592216

Stabile

  • Portineria: No
A4

Galleria Fotografica

Contatta l'inserzionista

Gambaro Intermediazioni Commerciali

Gambaro Intermediazioni Commerciali di Venezia propone in vendita questo immobile, contattali subito!

Annunci immobiliari a San Polo di Piave (TV)

Copyright Š 2026 PCase.it. All rights reserved. Sede operativa MILANO. P.IVA 08508420968 - Condizioni d'uso e privacy