Preferiti

Sponsorizza

Stampa

Capannone in vendita classe A4 a Meolo

  • 275.000€
  • 500 mq
  • Vendesi

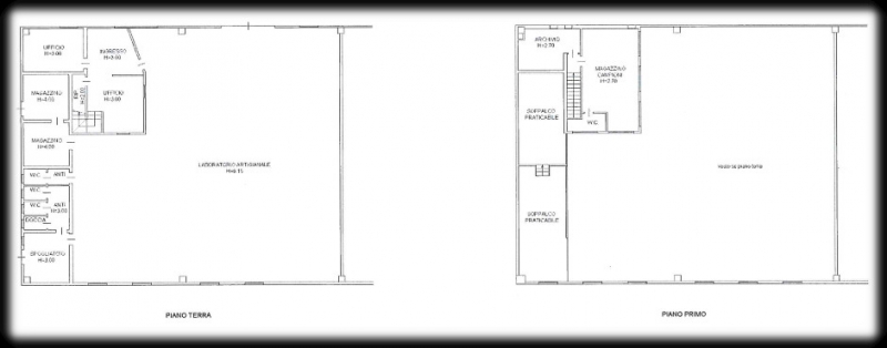
NOSTRO RIF. CP-158 Vicinanze Meolo, proponiamo in vendita in zona industriale CAPANNONE D/7 di mq 500 su un lotto di 1.600 mq con piazzale asfaltato antistante.
Il capannone si trova su una strada privata, con possibilità di accesso anche per i mezzi pesanti.
La struttura ha una altezza di 6.15 metri, uffici, bagni, spogliatoi per 150 mq soppalcati, che è possibile demolire in quanto sono in cartongesso.
Il capannone necessita dei lavori di adeguamento all'interno (impianti, finestre, lucernari), mentre il tetto è stato rifatto pochi anni fa. Possibilità di aumentare la superficie coperta fino al 50% del lotto.
Prezzo richiesto ? 275.000 trattabili.
APE in fase di definizione.
ATTENZIONE LA POSIZIONE E' PURAMENTE INDICATIVA Contatta l'inserzionista

Gambaro Intermediazioni CommercialiGambaro Intermediazioni Commerciali
Via Gaspare Gozzi)
30172, Venezia (Venezia)
Visualizza Telefono

INFORMAZIONI SULL'IMMOBILE

  • Riferimento: 1085783
  • Tipologia: Capannone in Vendita
  • Prezzo: 275.000 €
  • Prezzo al mq: 550 €
  • Modificato il: 16/10/2025
  • Scheda: SC9480252

Stabile

  • Portineria: No
A4

Contatta l'inserzionista

Gambaro Intermediazioni Commerciali

Gambaro Intermediazioni Commerciali di Venezia propone in vendita questo immobile, contattali subito!

Annunci immobiliari a Meolo (VE)

Copyright Š 2026 PCase.it. All rights reserved. Sede operativa MILANO. P.IVA 08508420968 - Condizioni d'uso e privacy