Preferiti

Sponsorizza

Stampa

Capannone in affitto a Rubano in via meucci

  • 9.000€
  • 10 locali
  • 2800 mq
  • Affittasi

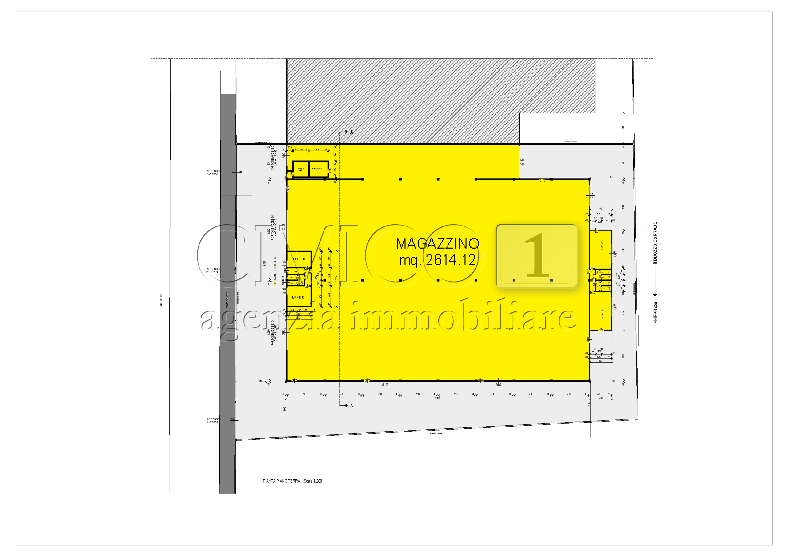
RU900 Capannone industriale RUBANO (PD) 2.300 mq Proponiamo in locazione capannone industriale di 2.800 mq situato nella zona produttiva di Rubano, in posizione strategica e comoda ai principali collegamenti viari.
Caratteristiche principali - Superficie totale: 2.874 di cui 100mq di uffici e 90 mq di spogliatoi.
- Destinazione duso: industriale / artigianale / logistica leggera - Altezza interna: idonea per stoccaggio e attività produttive - Struttura: prefabbricato industriale, spazi regolari e facilmente adattabili - Accessi: portoni carrabili per mezzi pesanti - Petrinenza esterna: area di manovra e carico/scarico che consente la possibilità di giro a 360°. - Impiantistica: dotazioni base presenti, cabina enel interna, - Area esterna esclusiva di 1750mq dedicata al carico/scarico dei muletti, per operazioni sicure e veloci.
- Carroponte presente . - Cabina Enel dedicata per garantire una potenza elettrica adeguata alle esigenze della tua attività. - Altezza utile fino a 9 metri, perfetta per ottimizzare lo stoccaggio e la movimentazione di merci, anche ingombranti.
- Sistema di rete antincendio ad anello lungo il perimetro esterno, per la massima sicurezza dell'immobile e delle merci.
Punti di forza - Posizione strategica vicino a tangenziale e A4 - Spazio flessibile, adatto a molteplici attività - Contesto produttivo consolidato con servizi e infrastrutture - Ottimo rapporto superficie/prezzo Ideale per - Logistica leggera - Deposito e magazzino - Produzione artigianale/industriale - Laboratori con area operativa estesa Classe energetica: G IPE 100.62 kWh/m anno Canone di locazione: ? 9.000,00 al mese + imposte.
Posizione ideale per aziende che operano nelle aree strategiche di Padova, Vicenza e Venezia, con facile accesso alle principali vie di comunicazione.
Per maggiori informazioni e per prenotare una visita, contattaci al 338.1588333 o invia una mail all'indirizzo *******@******* Contatta l'inserzionista

CIVICO1 Agenzia ImmobiliareCIVICO1 Agenzia Immobiliare
Via Sicilia, 1
35030, Rubano (Padova)
Visualizza Telefono

INFORMAZIONI SULL'IMMOBILE

  • Riferimento: RU900
  • Tipologia: Capannone in Affitto
  • Locali: 10 Locali
  • Stato: Buono
  • Prezzo: 9.000 €
  • Prezzo al mq: 3 €
  • Modificato il: 25/02/2026
  • Scheda: SC9608208

Stabile

  • Anno: 1985
G

Mappa e indirizzo

Capannone sito in via meucci
35030 Rubano (Padova)
mappa mostra l'annuncio su mappa

Galleria Fotografica

Contatta l'inserzionista

CIVICO1 Agenzia Immobiliare

CIVICO1 Agenzia Immobiliare di Rubano propone in affitto questo immobile, contattali subito!

Annunci simili

Annunci immobiliari a Rubano (PD)

Copyright Š 2026 PCase.it. All rights reserved. Sede operativa MILANO. P.IVA 08508420968 - Condizioni d'uso e privacy