Preferiti

Sponsorizza

Stampa

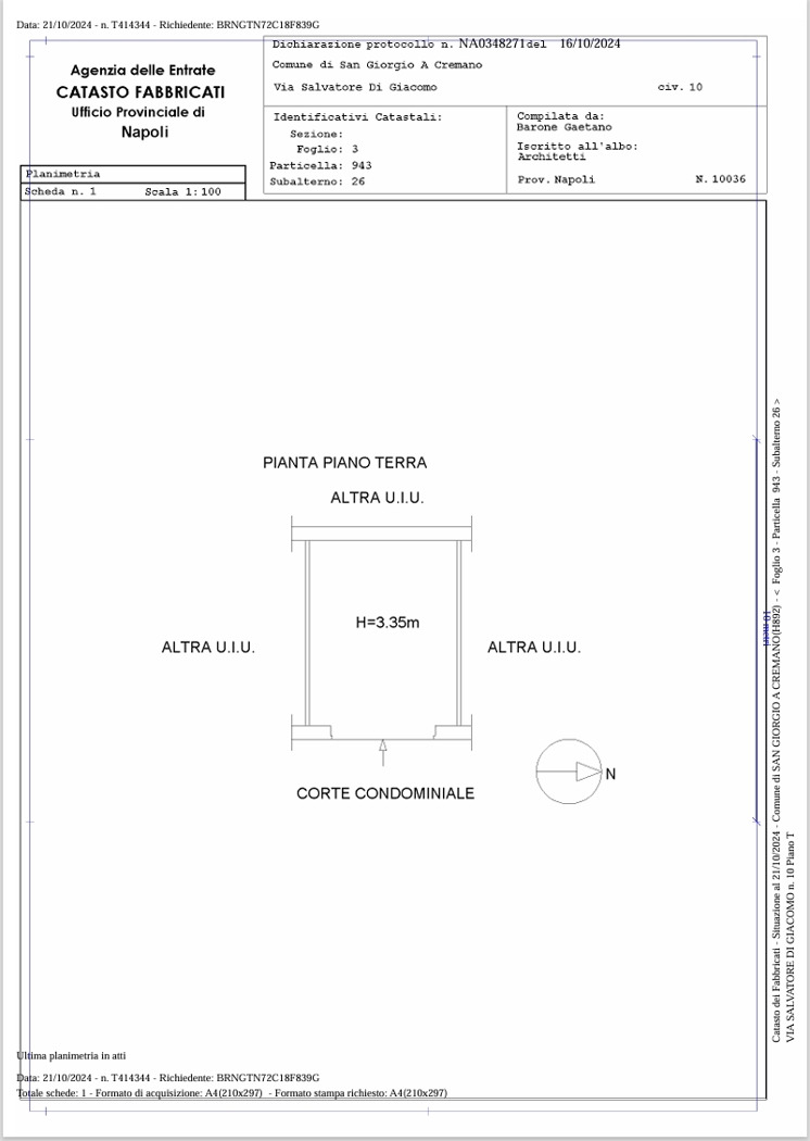
Box in vendita a San Giorgio a Cremano

  • trattativa riservata
  • 20 mq
  • Vendesi

GARAGE IN VENDITA San Giorgio a Cremano Via Salvatore Di Giacomo n. 10 Metrature: da 19 a 39 mq Altezza: 3,35 m Ideale come: posto auto deposito investimento Trattativa riservata Contatta l'inserzionista

Di Costanzo SalvatoreDi Costanzo Salvatore
Via Roma 61
, Sant'Anastasia (Napoli)
Visualizza Telefono

INFORMAZIONI SULL'IMMOBILE

  • Riferimento: Cod. rif 3290214VRG
  • Tipologia: Box/Posto auto in Vendita
  • Piano: Terra
  • Spazio Auto: No
  • Modificato il: 11/03/2026
  • Scheda: SC9617211

Stabile

  • Piano: Terra
  • Classe Energetica: n.d.

Mappa e indirizzo

80046 San Giorgio a Cremano (Napoli)
mappa mostra l'annuncio su mappa

Galleria Fotografica

Contatta l'inserzionista

Di Costanzo Salvatore

Di Costanzo Salvatore di Sant'Anastasia propone in vendita questo immobile, contattali subito!

Annunci simili

Annunci immobiliari a San Giorgio a Cremano (NA)

Copyright Š 2026 PCase.it. All rights reserved. Sede operativa MILANO. P.IVA 08508420968 - Condizioni d'uso e privacy