Preferiti

Sponsorizza

Stampa

Box in vendita a Busto Arsizio

  • 14.900€
  • 18 mq
  • Vendesi

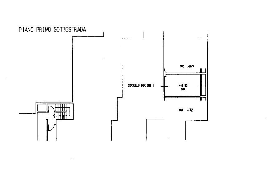
WPbox - Busto Arsizio, Beata Giuliana, in posizione comoda per raggiungere Gallarate, la S.S. Malpensa e l'ingresso autostradale, in stabile fine anni 80, proponiamo in vendita BOX SINGOLO posto al piano seminterrato.
Cancello elettrico con comando a distanza, ampio corsello box con ottimo spazio di manovra, illuminazione interna, basculante manuale.
La zona offre tutti i principali servizi utili e a portata di una passeggiata: scuole, posta, farmacie, fermata bus, centri commerciali e botteghe di vicinato.
Libero Subito. Contatta l'inserzionista

Studio 78 di Walter Pia & C. SasStudio 78 di Walter Pia & C. Sas
Via Felice Cavallotti 4
, Busto Arsizio (Varese)
Visualizza Telefono

INFORMAZIONI SULL'IMMOBILE

  • Riferimento: wpb75VRG
  • Tipologia: Box/Posto auto in Vendita
  • Piano: Terra
  • Prezzo: 14.900 €
  • Prezzo al mq: 828 €
  • Spazio Auto: No
  • Modificato il: 19/11/2025
  • Scheda: SC9502709

Stabile

  • Piano: Terra
  • Classe Energetica: n.d.

Mappa e indirizzo

21052 Busto Arsizio (Varese)
mappa mostra l'annuncio su mappa

Galleria Fotografica

Contatta l'inserzionista

Studio 78 di Walter Pia & C. Sas

Studio 78 di Walter Pia & C. Sas di Busto Arsizio propone in vendita questo immobile, contattali subito!

Annunci immobiliari a Busto Arsizio (VA)

Copyright Š 2026 PCase.it. All rights reserved. Sede operativa MILANO. P.IVA 08508420968 - Condizioni d'uso e privacy