Preferiti

Sponsorizza

Stampa

Appartamento bilocale in vendita a Roma

  • 448.000€
  • 2 locali
  • 52 mq
  • Vendesi

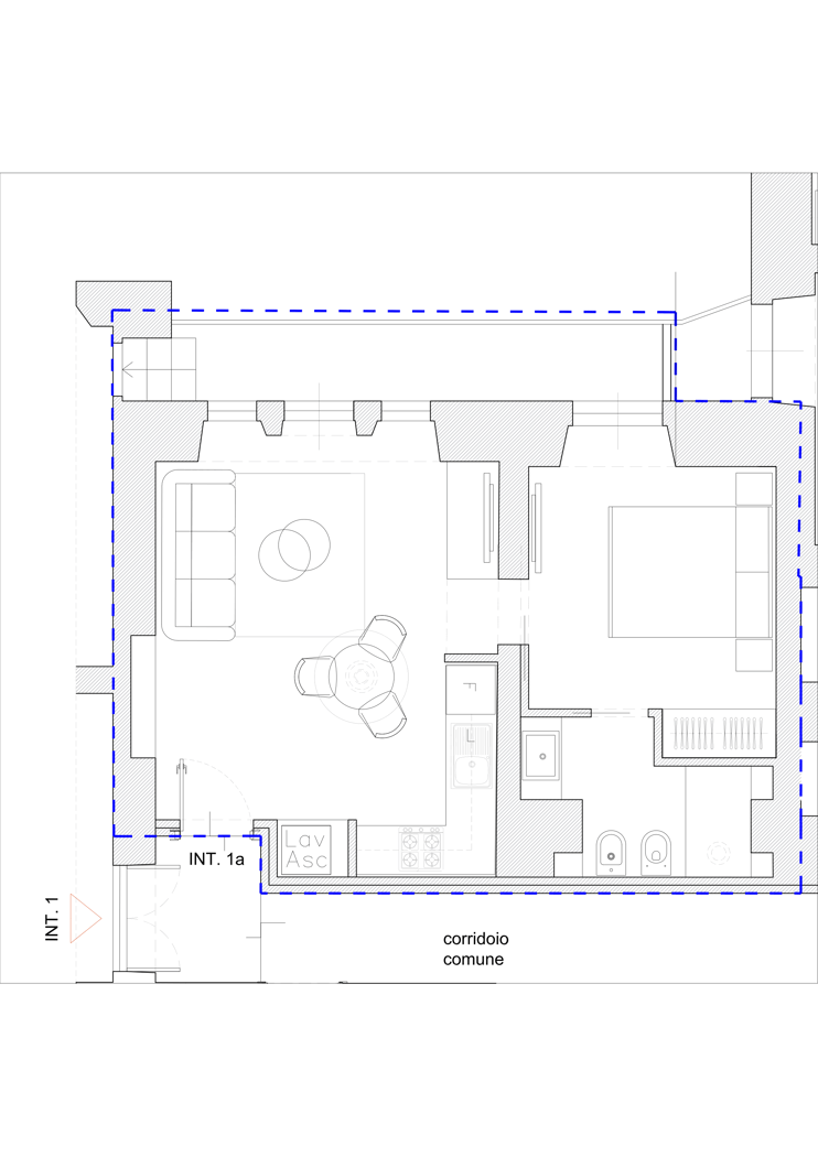
In uno dei quartieri pi eleganti di Roma, precisamente in Via Toscana, proponiamo, al primo piano di uno stabile signorile che offre servizio di portineria, la vendita di un appartamento di circa 53 mq in fase di totale ristrutturazione con affacci totalmente interni su un bellissimo giardino.
Limmobile, frutto del frazionamento di un immobile pi grande, avr consegna prevista per fine Aprile 2026 e si presenter finemente ristrutturato con materiali di qualit.
Oltrepassato il portone principale si acceder ad uno spazio comune che condurr allingresso dellappartamento.
Entrando la soluzione si aprir su un luminoso soggiorno con angolo cottura e accesso al balcone.
Proseguendo sulla destra, si acceder alla spaziosa camera da letto con bagno en-suite, anch'essa dotata di uscita sul balcone; Andranno a completare la propriet una pratica zona lavanderia ed un comodo soppalco.
Gli impianti idraulico, elettrico e di condizionamento saranno a norma, infissi in pvc bianco/doppio-vetro e pavimentazione in parquet in rovere massello.
Limpianto di riscaldamento sar sia elettrico che condominiale con contabilizzatori di calore, predisposizione dellimpianto di aria condizionata del tipo a split.
La posizione in cui si colloca limmobile strategica e centrale, vicino tutte le attivit commerciali e di trasporto pubblico.
Questo bilocale unottima opportunit abitativa, ideale per chi cerca comodit e desidera vivere in una zona residenziale, tranquilla e ben servita.
LE PRESENTI INDICAZIONI E/O PLANIMETRIE E RENDERING SONO PURAMENTE INDICATIVE E NON COSTITUISCONO ELEMENTO CONTRATTUALE.
ATTI SOGGETTI AD IMPOSTA DI REGISTRO ED ESENTI DA IVA. Contatta l'inserzionista

Roma Nord Immobiliare SrlsRoma Nord Immobiliare Srls
Via Alessandria 99
, Roma (Roma)
Visualizza Telefono

INFORMAZIONI SULL'IMMOBILE

  • Riferimento: Cod. rif 3299904VRG
  • Tipologia: Appartamento in Vendita
  • Locali: 2 Locali ( 1 camera, cucina angolo cottura e un bagno)
  • Piano: Primo
  • Prezzo: 448.000 €
  • Prezzo al mq: 8.615 €
  • Spese: 840,00 € (annuali)
  • Balconi: 1
  • Spazio Auto: No
  • Modificato il: 09/04/2026
  • Scheda: SC9614345

Stabile

  • Anno: 1930
  • Piano: 1
  • Portineria: Si
  • Classe Energetica: n.d.

Mappa e indirizzo

00135 Roma (Roma)
Centro Storico
mappa mostra l'annuncio su mappa

Metropolitana
MA
Fermata Barberini a 570m
circa 9/11 min a piedi
Metropolitana
MA
Fermata Spagna a 740m
circa 12/14 min a piedi
Metropolitana
MA
Fermata Repubblica a 760m
circa 12/14 min a piedi

Galleria Fotografica

Contatta l'inserzionista

Roma Nord Immobiliare Srls

Roma Nord Immobiliare Srls di Roma propone in vendita questo immobile, contattali subito!

Annunci simili

Annunci immobiliari a Roma (RM)

Copyright Š 2026 PCase.it. All rights reserved. Sede operativa MILANO. P.IVA 08508420968 - Condizioni d'uso e privacy